Каталог товаров

Клапан противопожарный ОЗ-60

Клапан противопожарный ОЗ изготавливается в режиме нормально открытого (огнезадерживающего) клапана (НО), в режиме нормально закрытого клапана (НЗ).
СДЕЛАНО В РОВЕН
Описание товара
Характеристики моделей
Купить
Руководства

Клапан противопожарный ОЗ изготавливается с режимами работы: 

  • (НО) нормально открытый (огнезадерживающий);
  • (НЗ) нормально закрытый (приточные, вытяжные и дымоудаления). 

Нормально открытый (НО) предназначен для блокирования распространения огня и продуктов горения по воздуховодам, шахтам и каналам систем вентиляции и кондиционирования при пожаре в зданиях и сооружениях различного назначения. Устанавливается в проемах или в местах прохода указанных систем через противопожарные преграды с нормируемым пределом огнестойкости (противопожарные стены, перегородки и перекрытия).
Нормально закрытый (НЗ) предназначен для использования в системах приточной и вытяжной противодымной вентиляции и в системах дымоудаления. Открывается во время или после пожара. Устанавливается в проемах стен, перекрытий, подвесных потолков, а также в торце воздуховодов.
Применение клапана ОЗ осуществляется в соответствии с требованиями СП 60.13330.2020, CП 7.13130.2013, ГОСТ Р 53301-2013 и действующими территориальными строительными нормами.
Климатическое исполнение и категория размещения - УЗ по ГОСТ 15150-69. Окружающая среда не должна содержать агрессивных паров и газов в концентрациях, разрушающих металлы, лакокрасочные покрытия и изоляцию.
Клапаны не подлежат установке в помещениях категорий А и Б по взрывопожароопасности, в системах вентиляции и местах отсоса взрывопожароопасных и агрессивных сред, а также в системах, не подвергающихся очистке от горючих отложений.
Клапаны ОЗ состоят из корпуса, заслонки и привода. Выпускаются прямоугольного или круглого сечения.
Клапаны прямоугольного сечения по умолчанию изготовлены с присоединительными фланцами.
Клапаны круглого сечения имеют могут быть изготовлены как с ниппельным так и с фланцевым соединением.
Противопожарные клапаны ОЗ изготавливаются из оцинкованной стали.

Предел огнестойкости EI 60 где:
E – потеря целостности. Она проявляется образованием в конструкции сквозных отверстий или трещин, через которые на обратную (необогреваемую) поверхность проникают продукты горения и (или) открытое пламя.
I – Потеря теплоизолирующей способности. Она характеризуется повышением температуры на необогреваемой поверхности конструкции до предельных значений.
60 – количество минут от начала огненного воздействия до проявления одного или нескольких признаков предельных состояний. 

Конструктивно клапаны ОЗ-60 изготавливаются односекционными.

Способы управления заслонкой клапана ОЗ

Тип привода

Принцип срабатывания привода

Механизм перевода заслонки

Способ перевода заслонки

в рабочее положение

в исходное положение

из рабочего положения в исходное (многократное использование)

Из исходного положения в рабочее

М

отключение питающего напряжения

возвратная пружина

электропривод

дистанционный с пульта управления

автоматический, по сигналам пожарной автоматики;

дистанционный с пульта управления

от кнопки/тумблера в месте установки клапана

вручную

Р

подача напряжения на соответствующие клеммы питания привода

электропривод

электропривод

дистанционный с пульта управления

вручную

ЭМ

подача напряжения на электромагнит*

возвратная пружина

-

вручную

* Подача напряжения на катушку электромагнита не более 1 минуты по требованиям производителя.

Удельное сопротивление дымогазопроницанию*

L*H, мм

(проходное сечение клапана)

D, мм

(диаметр проходного сечения клапана)

Удельное сопротивление, м3/кг

100*100...500*500

100...315

не менее 12000

свыше 500*500...1000*1000

355...710

13000...25000

свыше 1000*1000...1500*1000

800

свыше 25000


* Удельное сопротивление указано для цельного клапана (не в виде кассет) согласно таблицам типоразмерного ряда.

Файлы
Клапаны противопожарные типа ОЗ.pdf

Габаритные и присоединительные размеры (мм)

Клапаны противопожарные ОЗ прямоугольного сечения изготавливаются с шагом 50 мм.
Клапаны размером свыше максимального изготавливаются в виде кассеты из нескольких цельных клапанов, при этом общая высота (H) кассеты не больше 1500 мм.
Длина (L) цельного клапана должна быть больше высоты (H).

Минимальные и максимальные размеры клапанов ОЗ прямоугольного сечения

Тип клапана

Проходное сечение (L*H), мм

минимальное

максимальное

цельного клапана

клапана в виде кассет

Канальный

100*100

1500*500

1000*1000

2000*1500

Стеновой

300*300

1000*1000

Клапаны противопожарные ОЗ круглого сечения изготавливаются только представленных типоразмеров и канального типа с расположением привода снаружи.

Минимальные и максимальные размеры клапанов ОЗ круглого сечения

Тип клапана

Диаметр проходного сечения (D), мм

минимальный размер

максимальный размер

Канальный

100

560

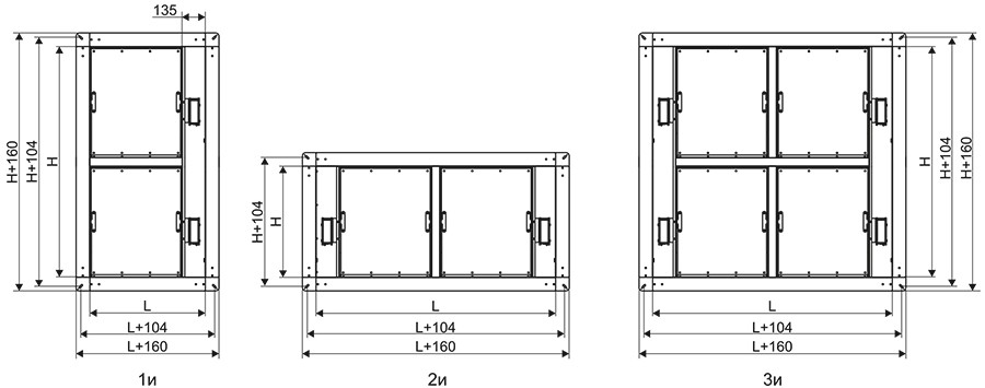
Типоразмеры клапанов ОЗ прямоугольного сечения канального типа

Типоразмер клапанов ОЗ прямоуг канальные.jpg

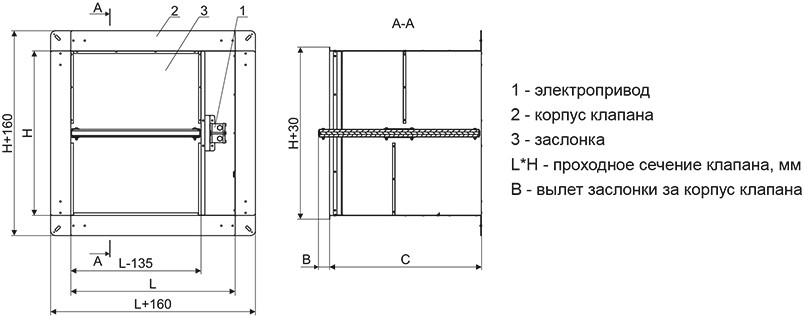
Клапаны ОЗ-60 прямоугольного сечения канального типа

ОЗ-60 прямоуг канальный_чертеж.jpg

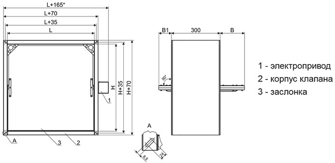
L*H - проходное сечение клапана, мм; В, В1 - вылет заслонки за корпус клапана
* - Справочный размер, зависящий от типа привода.

Величина вылета заслонки клапанов ОЗ-60 прямоугольного сечения канального типа

H, мм

100

150

200

250

300

350

400

450

500

550

600

650

700

750

800

850

900

950

1000

B, мм

0

0

25

50

75

100

125

150

175

200

225

250

275

300

325

350

375

400

425

B1, мм

0

0

0

0

0

0

0

0

15

40

65

90

115

140

165

190

215

240

265

Масса клапанов ОЗ-60 прямоугольного сечения канального типа, кг

ОЗ-60 прямоуг канальный_масса.jpg

Клапаны ОЗ-60 канального типа в виде кассет

ОЗ-60, ОЗ-90 канальные кассеты.jpg

Коэффициент местного сопротивления ε клапанов ОЗ-60 канального типа

ОЗ-60, ОЗ-90 канальные коэффициент.jpg

Площадь живого сечения клапанов ОЗ-60 прямоугольного сечения канального типа, м2

ОЗ-60 канальные площадь.jpg

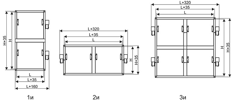
Типоразмеры клапанов ОЗ прямоугольного сечения стенового типа

Типоразмер клапанов ОЗ прямоуг стеновые.jpg

Клапан ОЗ-60 прямоугольного сечения стенового типа

ОЗ-60 прямоуг стеновой_чертеж.jpg

Габаритные размеры клапана ОЗ-60 прямоугольного сечения стенового типа

H, мм

300*

350*

400

450

500

550

600

650

700

750

800

850

900

950

1000

C, мм

300

350

350

400

400

450

450

500

500

550

550

600

600

650

650

В, мм

(не более)

0

0

50

50

100

100

150

150

200

200

250

250

300

300

350

* Электромагнитный привод (ЭМ) на данный типоразмер не устанавливается. Вылет заслонки за пределы корпуса на лицевой стороне клапана отсутствует

Масса клапанов ОЗ-60 прямоугольного сечения стенового типа, кг

ОЗ-60 прямоуг стеновой_масса.jpg

Клапаны ОЗ-60 стенового типа в виде кассет

ОЗ-60, ОЗ-90 стеновые кассеты.jpg

Площадь живого сечения клапанов ОЗ-60 стенового типа, м2
ОЗ-60 стеновые площадь.jpg

Коэффициент местного сопротивления ε клапанов ОЗ-60 стенового типа

ОЗ-60, ОЗ-90 стеновые коэффициент.jpg

Габаритные и присоединительные размеры клапана ОЗ-60 круглого сечения

ОЗ-60 круг_чертеж.jpg

1 - электропривод; 2 - корпус клапана; 3 - заслонка.
D - диаметр клапана, мм.
D1 - диаметр расположения присоединительных отверстий.
В, В1 - вылет заслонки за корпус клапана.

D, мм

100

125

140

160

180

200

225

250

280

315

355

400

450

500

560

D1, мм

125

150

170

185

200

235

255

290

310

350

385

435

480

535

590

B, мм

0

0

0

0

0

0

0

0,5

14,5

32

52

74,5

99,5

124,5

154,5

B1, мм

0

0

0

0

0

0

0

0

0

0

0

1,5

23,5

48,5

78,5

Площадь живого сечения клапанов ОЗ-60, м2

D, мм

100

125

140

160

180

200

225

250

280

315

355

400

450

500

560

F, м2

0,006

0,01

0,013

0,017

0,022

0,027

0,035

0,044

0,053

0,071

0,091

0,12

0,15

0,19

0,23

Коэффициент местного сопротивления ε клапанов ОЗ-60

D, мм

100

125

140

160

180

200

225

250

280

315

355

400

450

500

560

ε

1,88

1,6

1,42

1,16

0,89

0,7

0,5

0,39

0,29

0,24

0,19

0,16

0,14

0,12

0,1

Масса клапанов ОЗ-60-НЗ с реверсивным приводом (Р)

D, мм

100

125

140

160

180

200

225

250

280

315

355

400

450

500

560

m, кг

3,5

3,8

4,1

4,3

4,6

4,9

5,3

5,8

6,3

7,0

7,9

9,0

10,3

11,7

13,6

Масса клапанов ОЗ-60-НО с электромеханическим приводом (М)

D, мм

100

125

140

160

180

200

225

250

280

315

355

400

450

500

560

m, кг

2,9

3,2

3,4

3,7

4,1

4,4

4,9

5,3

6,0

6,8

7,8

9,1

10,6

12,3

14,5

Масса клапанов ОЗ-60-НЗ с электромагнитным приводом (ЭМ)

D, мм

100

125

140

160

180

200

225

250

280

315

355

400

450

500

560

m, кг

4,5

4,7

5,0

5,2

5,5

5,8

6,2

6,7

7,2

7,9

8,8

9,9

11,2

12,6

14,4

Масса клапанов ОЗ-60-НО с электромагнитным приводом (ЭМ)

D, мм

100

125

140

160

180

200

225

250

280

315

355

400

450

500

560

m, кг

4,5

4,8

5,1

5,3

5,7

6,0

6,5

7,0

7,6

8,4

9,4

10,7

12,3

13,9

16,1

Характеристики электромагнитного привода и приводов производства РОВЕН

Характеристика

Электро-магнитный

Электромеханический РОВЕН*

Реверсивный РОВЕН*

RLF03-24S

RLF03-220S

RLF05-24S

RLF05-220S

RLE10- 24S

RLE10- 220S

Время поворота, с

2

25...45 (возвратная пружина <15)

50...70 (возвратная пружина <25)

<30

<30

Крутящий момент, Нм

-

3

3

5

5

10

10

Напряжение электропитания привода, В

24/220

~24±10%

~230±10%

~24±10%

~230±10%

24

220

Потребляемая мощность, Вт

во время вращения

70

5,0

5,0

5,0

5,0

4,0

4,0

в состоянии покоя

-

3,5

3,5

3,5

3,5

3,0

3,0

Рабочая температура, °С

-30...+50

-30..+50

-30..+50

-30..+50

-30..+50

-30..+50

-30..+50

Степень защиты

IP54

IP54

IP54

IP54

IP54

IP54

IP54

Вес, кг

1,5

1,2

1,2

1,8

1,8

1,8

1,8

* Полная информация по электроприводам РОВЕН в разделе "Электроприводы RWE/RWF, RLE/RLF".

Схемы установки клапанов

Схемы установки клапанов ОЗ.jpg

А - обслуживаемое помещение;
Б - помещение, смежное с обслуживаемым;
1 - строительная конструкция; 2 - корпус клапана; 3 - воздуховод; 4 - ось заслонки; 5 - наружная огнезащита; 6 – отрезок воздуховода; 7 - уголок, ограничивающий часть поверхности корпуса клапана, которая устанавливается в строительную конструкцию или покрывается огнезащитой (при установке клапана за пределами конструкции); 8 - защитный кожух, 9 - привод.

Электрические схемы подключения клапанов ОЗ

Клапаны ОЗ_электросхемы.jpg

ОЗ-60 прямоуг_маркировка.jpg

ОЗ-60 круг_маркировка.jpg


Не представленные в наличии модели доступны к поставке под заказ

Оповестить о поступлении

Спасибо за обращение!
Наш менеджер свяжется с вами.
Руководство по эксплуатации ОЗ.pdf

Всю необходимую информацию также можно получить по телефону «горячей линии»

+ 7 800 200 93 96

или по телефону

+7 800 505 08 67 получить консультацию