Вентилятор радиальный тягодутьевый ТДРВ-90-60
- Вентилятор среднего и высокого давления, одностороннего всасывания;
- Направление вращения – правое и левое
- Лопатки, загнутые вперед
- Конструктивная схема (исполнение) 1, 3 и 5 по ГОСТ 5976
- Температура окружающего воздуха: -40...+40°С
- Категория размещения У2 по ГОСТ 15150
Вентиляторы ТДРВ 90-60 предназначены:
- для подачи воздуха в топки паровых котлов;
- для перемещения чистого воздуха в технологических установках различных отраслей народного хозяйства;
- для использования в качестве дымососов на газомазутных котлах с уравновешенной тягой.
Вентиляторы выпускаются в следующих исполнениях:
- общепромышленное (О);
- теплостойкое (Т200): температура перемещаемой среды на входе в вентилятор не более +200°С.
Для увеличения долговечности вентилятора ТДРВ 90-60 и эксплуатации в качестве дымососа, толщина металла стенок улитки увеличена.
По отдельному запросу рассматривается возможность комплектации вентиляторов осевыми направляющими аппаратами (ОНА), которые позволяют регулировать их работу. Углы установки лопаток ОНА регулируются вручную или механизмом электрического привода.
Дополнительное оборудование для монтажа вентиляторов ТДРВ 90-60

|
№ |
Наименование |
Описание |
|
1 |
Вставка гибкая круглая ВГК-ТДРВ-90-60* |
Вставки гибкие круглые предназначены для предотвращения передачи вибрации от вентилятора к воздуховоду |
|
2 |
Вставка гибкая прямоугольная ВГП-ТДРВ-90-60* |
Вставки гибкие прямоугольные предназначены для предотвращения передачи вибрации от вентилятора к воздуховоду |
|
3 |
Виброизоляторы |
Виброизоляторы устанавливают для отсечки вибрационной нагрузки на вентилятор и на фундамент |
|
4 |
Кожух ЭД-ТДРВ-90-60 |
Кожух ЭД предназначен для защиты электродвигателя от попадания осадков при использовании вентилятора на улице |
Примечание: Дополнительное оборудование в стандартную комплектацию не входит.
* Выпускаются как в общепромышленном исполнении (О) с температурой перемещаемой среды от -40°С до +80°С, так и в теплостойком (Т200), с предельной температурой до +200°С.
Вентиляторы выпускаются в следующих исполнениях
|
Исполнение |
Условное обозначение |
Материал |
Температура перемещаемой среды, °С |
|
Общепромышленное |
О |
Оцинкованная сталь |
-40...+80 |
|
Теплостойкие |
Т200 |
-40…+200 |
Условное обозначение специальных исполнений по сериям вентиляторов
|
Исполнение |
Условное обозначение |
Назначение |
|
Общепромышленное |
О |
Для перемещения воздуха и других газопаровоздушных смесей, не вызывающих ускоренной коррозии оцинкованной стали, не содержащих липких веществ, волокнистых материалов, с содержанием пыли и др. твердых примесей не более 100 мг/м3 |
|
Теплостойкие |
Т200 |
Полная информация о вентиляторах ТДРВ 90-60 в электронном pdf-каталоге по ссылке во вкладке "Характеристики".
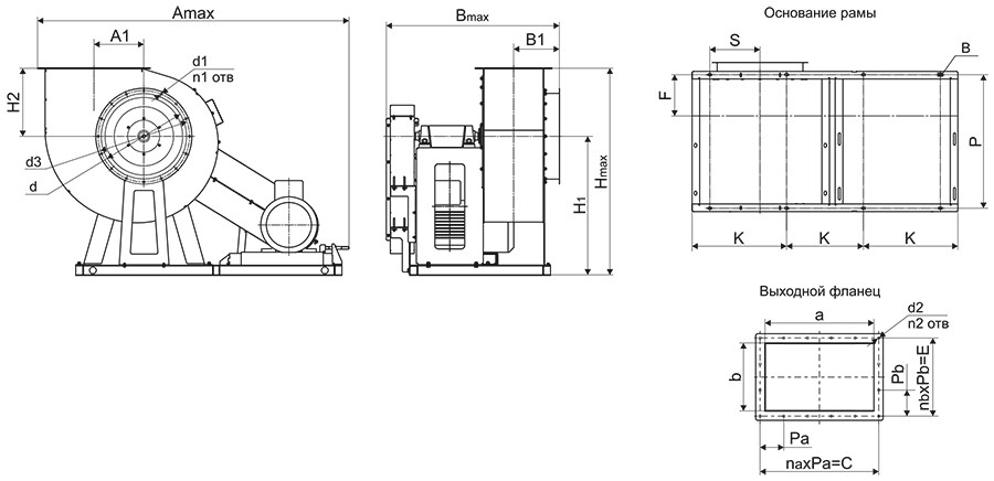
Габаритные и присоединительные размеры ТДРВ 90-60 без ОНА (мм). Исполнение 1

|
№ вент |
a |
b |
C |
E |
Pa |
Pb |
na |
nb |
n2 |
d2 |
d |
d3 |
d1 |
n1 |
H1 |
H2 |
H max |
B max |
B1 |
A |
A1 |
F |
K |
N |
n3 |
P |
L |
M |
|
2,24 |
224 |
139 |
270 |
180 |
135 |
90 |
2 |
2 |
8 |
7 |
213 |
235 |
7 |
8 |
310 |
190 |
500 |
480 |
164 |
495 |
145 |
75 |
168 |
335 |
4 |
258 |
20 |
8 |
|
2,5 |
250 |
155 |
290 |
190 |
145 |
95 |
2 |
2 |
8 |
10 |
224 |
253 |
7 |
8 |
336 |
205 |
541 |
500 |
172 |
520 |
132 |
64 |
166 |
332 |
4 |
292 |
20 |
10 |
|
2,8 |
280 |
174 |
324 |
216 |
108 |
108 |
3 |
2 |
10 |
10 |
250 |
289 |
10 |
8 |
366 |
225 |
591 |
535 |
181 |
575 |
146 |
72 |
183 |
366 |
4 |
330 |
20 |
10 |
|
3,15 |
315 |
195 |
360 |
230 |
120 |
115 |
3 |
2 |
10 |
10 |
280 |
309 |
10 |
8 |
422 |
250 |
672 |
586 |
192 |
635 |
164 |
94 |
215 |
430 |
4 |
364 |
20 |
10 |
|
3,55 |
355 |
220 |
405 |
260 |
135 |
130 |
3 |
2 |
10 |
10 |
315 |
349 |
10 |
8 |
472 |
275 |
747 |
605 |
204 |
710 |
185 |
126 |
234 |
468 |
4 |
416 |
20 |
10 |
|
4,0 |
400 |
248 |
440 |
285 |
110 |
95 |
4 |
3 |
14 |
10 |
355 |
384 |
10 |
8 |
518 |
305 |
823 |
720 |
218 |
790 |
208 |
130 |
280 |
560 |
4 |
472 |
20 |
10 |
|
4,5 |
450 |
279 |
520 |
345 |
130 |
115 |
4 |
3 |
14 |
12 |
400 |
434 |
12 |
8 |
570 |
335 |
905 |
840 |
234 |
895 |
235 |
140 |
340 |
680 |
6 |
538 |
24 |
12 |
|
5,0 |
500 |
310 |
575 |
375 |
115 |
125 |
5 |
3 |
16 |
12 |
450 |
479 |
12 |
8 |
622 |
370 |
992 |
875 |
250 |
980 |
264 |
156 |
358 |
716 |
6 |
594 |
24 |
12 |
|
5,6 |
560 |
347 |
625 |
405 |
125 |
135 |
5 |
3 |
16 |
12 |
500 |
534 |
12 |
16 |
682 |
405 |
1087 |
815 |
269 |
1085 |
292 |
176 |
323 |
646 |
6 |
670 |
24 |
12 |
|
6,3 |
627 |
385 |
660 |
424 |
165 |
128 |
5 |
4 |
20 |
12 |
560 |
589 |
12 |
16 |
754 |
455 |
1209 |
920 |
291 |
1215 |
328 |
196 |
367 |
733 |
6 |
758 |
24 |
12 |
|
7,1 |
710 |
440 |
780 |
504 |
130 |
126 |
6 |
4 |
20 |
12 |
630 |
665 |
12 |
16 |
886 |
505 |
1391 |
1080 |
346 |
1365 |
369 |
218 |
428 |
856 |
6 |
840 |
28 |
14 |
|
8,0 |
800 |
496 |
875 |
560 |
125 |
140 |
7 |
4 |
22 |
12 |
710 |
739 |
12 |
16 |
978 |
565 |
1543 |
1250 |
404 |
1525 |
409 |
218 |
500 |
1000 |
6 |
966 |
28 |
14 |
|
9,0 |
900 |
558 |
976 |
625 |
122 |
125 |
8 |
5 |
26 |
12 |
800 |
829 |
12 |
16 |
1080 |
630 |
1710 |
1425 |
435 |
1700 |
475 |
278 |
598 |
1196 |
6 |
1068 |
28 |
14 |
|
10,0 |
1000 |
620 |
1080 |
690 |
135 |
138 |
8 |
5 |
26 |
14 |
900 |
938 |
15 |
16 |
1182 |
695 |
1877 |
1515 |
466 |
1885 |
503 |
278 |
622 |
1244 |
6 |
1190 |
36 |
18 |
|
11,2 |
1120 |
694 |
1206 |
768 |
134 |
128 |
9 |
6 |
30 |
14 |
1000 |
1030 |
15 |
16 |
1304 |
770 |
2074 |
1560 |
505 |
2095 |
585 |
345 |
663 |
1325 |
6 |
1248 |
36 |
18 |
Габаритные и присоединительные размеры ТДРВ 90-60 без ОНА (мм). Исполнение 3

|
№ вент |
a |
b |
C |
E |
Pa |
Pb |
na |
nb |
n2 |
d2 |
d |
d3 |
d1 |
n1 |
H1 |
H2 |
H max |
B max |
B1 |
A |
A1 |
F |
K |
n3 |
P |
L |
M |
|
5,6 |
560 |
347 |
625 |
405 |
125 |
135 |
5 |
3 |
16 |
12 |
500 |
534 |
12 |
16 |
682 |
405 |
1087 |
1340 |
269 |
1085 |
292 |
176 |
394 |
8 |
670 |
24 |
12 |
|
6,3 |
630 |
391 |
708 |
452 |
118 |
115 |
6 |
4 |
20 |
12 |
560 |
589 |
12 |
16 |
754 |
455 |
1209 |
1490 |
291 |
1215 |
329 |
196 |
434 |
8 |
758 |
24 |
12 |
|
7,1 |
710 |
440 |
780 |
504 |
130 |
126 |
6 |
4 |
20 |
12 |
630 |
665 |
12 |
16 |
886 |
505 |
1391 |
1785 |
346 |
1365 |
370 |
218 |
506 |
8 |
840 |
28 |
14 |
|
8,0 |
800 |
496 |
875 |
560 |
125 |
140 |
7 |
4 |
22 |
12 |
710 |
739 |
12 |
16 |
978 |
565 |
1543 |
1985 |
404 |
1525 |
417 |
218 |
565 |
8 |
966 |
28 |
14 |
|
9,0 |
900 |
558 |
976 |
625 |
122 |
125 |
8 |
5 |
26 |
12 |
800 |
829 |
15 |
16 |
1080 |
630 |
1710 |
2160 |
435 |
1700 |
469 |
278 |
630 |
8 |
1068 |
28 |
14 |
|
10,0 |
1000 |
620 |
1080 |
690 |
135 |
138 |
8 |
5 |
26 |
14 |
900 |
938 |
15 |
16 |
1182 |
695 |
1877 |
2275 |
466 |
1885 |
521 |
278 |
656 |
8 |
1190 |
36 |
18 |
|
11,2 |
1120 |
694 |
1206 |
768 |
134 |
128 |
9 |
6 |
30 |
14 |
1000 |
1030 |
15 |
16 |
1304 |
770 |
2074 |
2490 |
505 |
2095 |
584 |
345 |
730 |
8 |
1248 |
36 |
18 |
Габаритные и присоединительные размеры, массы вентиляторов ТДРВ 90-60 исполнения 5 предоставляются по отдельному запросу.
Технические характеристики
|
Наименование |
Тип электродвигателя |
N, кВт |
n, об/мин |
Ток, А |
Масса, кг |
|||
|
двигателя |
колеса |
исп 1 |
исп 3 |
|||||
|
ТДРВ 90-60-2,24-О-1-0,12/1500/220-380 |
АИР56А4 |
0,12 |
1500 |
0,44 |
24 |
- |
||
|
ТДРВ 90-60-2,24-О-1-0,25/3000/220-380 |
АИР56В2 |
0,25 |
3000 |
0,69 |
24 |
- |
||
|
ТДРВ 90-60-2,24-О-1-0,37/3000/220-380 |
АИР63А2 |
0,37 |
1,01 |
25 |
- |
|||
|
ТДРВ 90-60-2,5-О-1-0,12/1500/220-380 |
АИР56А4 |
0,12 |
1500 |
0,44 |
28 |
- |
||
|
ТДРВ 90-60-2,5-О-1-0,37/3000/220-380 |
АИР63А2 |
0,37 |
3000 |
1,01 |
29 |
- |
||
|
ТДРВ 90-60-2,5-О-1-0,55/3000/220-380 |
АИР63В2 |
0,55 |
1,38 |
29 |
- |
|||
|
ТДРВ 90-60-2,8-О-1-0,12/1500/220-380 |
АИР56А4 |
0,12 |
1500 |
0,44 |
34 |
- |
||
|
ТДРВ 90-60-2,8-О-1-0,55/3000/220-380 |
АИР63В2 |
0,55 |
3000 |
1,38 |
35 |
- |
||
|
ТДРВ 90-60-2,8-О-1-0,75/3000/220-380 |
АИР71А2 |
0,75 |
1,83 |
45 |
- |
|||
|
ТДРВ 90-60-3,15-О-1-0,25/1500/220-380 |
АИР63А4 |
0,25 |
1500 |
0,79 |
43 |
- |
||
|
ТДРВ 90-60-3,15-О-1-1,5/3000/220-380 |
АИР80А2 |
1,5 |
3000 |
3,46 |
55 |
- |
||
|
ТДРВ 90-60-3,15-О-1-2,2/3000/220-380 |
АИР80В2 |
2,2 |
4,85 |
56 |
- |
|||
|
ТДРВ 90-60-3,55-О-1-0,25/1500/220-380 |
АИР63А4 |
0,25 |
1500 |
0,79 |
53 |
- |
||
|
ТДРВ 90-60-3,55-О-1-1,5/3000/220-380 |
АИР80А2 |
1,5 |
3000 |
3,46 |
65 |
- |
||
|
ТДРВ 90-60-3,55-О-1-2,2/3000/220-380 |
АИР80В2 |
2,2 |
4,85 |
66 |
- |
|||
|
ТДРВ 90-60-4,0-О-1-0,37/1500/220-380 |
АИР63В4 |
0,37 |
1500 |
1,12 |
65 |
- |
||
|
ТДРВ 90-60-4,0-О-1-0,55/1500/220-380 |
АИР71А4 |
0,55 |
1,57 |
74 |
- |
|||
|
ТДРВ 90-60-4,0-О-1-2,2/3000/220-380 |
АИР80В2 |
2,2 |
3000 |
4,85 |
78 |
- |
||
|
ТДРВ 90-60-4,0-О-1-3,0/3000/220-380 |
АИР90L2 |
3,0 |
6,34 |
86 |
- |
|||
|
ТДРВ 90-60-4,0-О-1-4,0/3000/220-380 |
АИР100S2 |
4,0 |
8,2 |
91 |
- |
|||
|
ТДРВ 90-60-4,5-О-1-1,1/1500/220-380 |
АИР80А4 |
1,1 |
1500 |
2,85 |
91 |
- |
||
|
ТДРВ 90-60-4,5-О-1-1,5/1500/220-380 |
АИР80В4 |
1,5 |
3,72 |
94 |
- |
|||
|
ТДРВ 90-60-4,5-О-1-7,5/3000/220-380 |
АИР112М2 |
7,5 |
3000 |
14,9 |
126 |
- |
||
|
ТДРВ 90-60-4,5-О-1-11,0/3000/380-660 |
АИР132М2 |
11,0 |
21,2 |
149 |
- |
|||
|
ТДРВ 90-60-5,0-О-1-1,1/1500/220-380 |
АИР80А4 |
1,1 |
1500 |
2,85 |
108 |
- |
||
|
ТДРВ 90-60-5,0-О-1-1,5/1500/220-380 |
АИР80В4 |
1,5 |
3,72 |
111 |
- |
|||
|
ТДРВ 90-60-5,0-О-1-7,5/3000/220-380 |
АИР112М2 |
7,5 |
3000 |
14,9 |
143 |
- |
||
|
ТДРВ 90-60-5,0-О-1-11,0/3000/380-660 |
АИР132М2 |
11,0 |
21,2 |
166 |
- |
|||
|
ТДРВ 90-60-5,6-О-1-2,2/1500/220-380 |
АИР90L4 |
2,2 |
1500 |
5,1 |
142 |
207 |
||
|
ТДРВ 90-60-5,6-О-1-3,0/1500/220-380 |
АИР100S4 |
3,0 |
6,8 |
149 |
214 |
|||
|
ТДРВ 90-60-5,6-О-5(1667)-2,2/3000/220-380 |
АИР80В2 |
2,2 |
3000 |
1667 |
4,85 |
- |
- |
|
|
ТДРВ 90-60-5,6-О-5(1667)-3,0/3000/220-380 |
АИР90L2 |
3,0 |
6,34 |
- |
- |
|||
|
ТДРВ 90-60-5,6-О-5(1667)-4,0/3000/220-380 |
АИР100S2 |
4,0 |
8,2 |
- |
- |
|||
|
ТДРВ 90-60-5,6-О-5(1875)-3,0/3000/220-380 |
АИР90L2 |
3,0 |
3000 |
1875 |
6,34 |
- |
- |
|
|
ТДРВ 90-60-5,6-О-5(1875)-4,0/3000/220-380 |
АИР100S2 |
4,0 |
8,2 |
- |
- |
|||
|
ТДРВ 90-60-5,6-О-5(1875)-5,5/3000/220-380 |
АИР100L2 |
5,5 |
11,1 |
- |
- |
|||
|
ТДРВ 90-60-5,6-О-5(2143)-5,5/3000/220-380 |
АИР100L2 |
5,5 |
3000 |
2143 |
11,1 |
- |
- |
|
|
ТДРВ 90-60-5,6-О-5(2143)-7,5/3000/220-380 |
АИР112М2 |
7,5 |
14,9 |
- |
- |
|||
|
ТДРВ 90-60-5,6-О-5(2400)-7,5/3000/220-380 |
АИР112М2 |
7,5 |
3000 |
2400 |
14,9 |
- |
- |
|
|
ТДРВ 90-60-5,6-О-5(2400)-11,0/3000/380-660 |
АИР132М2 |
11,0 |
21,2 |
- |
- |
|||
|
ТДРВ 90-60-5,6-О-5(2679)-7,5/3000/220-380 |
АИР112М2 |
7,5 |
3000 |
2679 |
14,9 |
- |
- |
|
|
ТДРВ 90-60-5,6-О-5(2679)-11,0/3000/380-660 |
АИР132М2 |
11,0 |
21,2 |
- |
- |
|||
|
ТДРВ 90-60-5,6-О-5(2679)-15,0/3000/380-660 |
АИР160S2 |
15,0 |
28,6 |
- |
- |
|||
|
ТДРВ 90-60-6,3-О-1-1,5/1000/220-380 |
АИР90L6 |
1,5 |
1000 |
4 |
173 |
249 |
||
|
ТДРВ 90-60-6,3-О-1-2,2/1000/220-380 |
АИР100L6 |
2,2 |
5,6 |
182 |
257 |
|||
|
ТДРВ 90-60-6,3-О-1-4,0/1500/220-380 |
АИР100L4 |
4,0 |
1500 |
8,8 |
184 |
260 |
||
|
ТДРВ 90-60-6,3-О-1-5,5/1500/220-380 |
АИР112М4 |
5,5 |
11,7 |
194 |
269 |
|||
|
ТДРВ 90-60-6,3-О-5(1000)-1,5/1000/220-380 |
АИР90L6 |
1,5 |
1000 |
4 |
- |
- |
||
|
ТДРВ 90-60-6,3-О-5(1000)-2,2/1000/220-380 |
АИР100L6 |
2,2 |
5,6 |
- |
- |
|||
|
ТДРВ 90-60-6,3-О-5(1071)-1,5/1500/220-380 |
АИР80В4 |
1,5 |
1500 |
1071 |
3,72 |
- |
|
|
|
ТДРВ 90-60-6,3-О-5(1071)-2,2/1500/220-380 |
АИР90L4 |
2,2 |
5,1 |
- |
|
|||
|
ТДРВ 90-60-6,3-О-5(1200)-2,2/1500/220-380 |
АИР90L4 |
2,2 |
1500 |
1200 |
5,1 |
- |
|
|
|
ТДРВ 90-60-6,3-О-5(1200)-3,0/1500/220-380 |
АИР100S4 |
3,0 |
6,8 |
- |
|
|||
|
ТДРВ 90-60-6,3-О-5(1339)-3,0/1500/220-380 |
АИР100S4 |
3,0 |
1500 |
1339 |
6,8 |
- |
|
|
|
ТДРВ 90-60-6,3-О-5(1339)-4,0/1500/220-380 |
АИР100L4 |
4,0 |
8,8 |
- |
|
|||
|
ТДРВ 90-60-6,3-О-5(1500)-4,0/1500/220-380 |
АИР100L4 |
4,0 |
1500 |
8,8 |
- |
- |
||
|
ТДРВ 90-60-6,3-О-5(1500)-5,5/1500/220-380 |
АИР112М4 |
5,5 |
11,7 |
- |
- |
|||
|
ТДРВ 90-60-6,3-О-5(1667)-5,5/3000/220-380 |
АИР100L2 |
5,5 |
3000 |
1667 |
11,1 |
- |
|
|
|
ТДРВ 90-60-6,3-О-5(1667)-7,5/3000/220-380 |
АИР112М2 |
7,5 |
14,9 |
- |
|
|||
|
ТДРВ 90-60-6,3-О-5(1875)-7,5/3000/220-380 |
АИР112М2 |
7,5 |
3000 |
1875 |
14,9 |
- |
|
|
|
ТДРВ 90-60-6,3-О-5(1875)-11,0/3000/380-660 |
АИР132М2 |
11,0 |
21,2 |
- |
|
|||
|
ТДРВ 90-60-6,3-О-5(2143)-11,0/3000/380-660 |
АИР132М2 |
11,0 |
3000 |
2143 |
21,2 |
- |
|
|
|
ТДРВ 90-60-6,3-О-5(2143)-15,0/3000/380-660 |
АИР160S2 |
15,0 |
28,6 |
- |
|
|||
|
ТДРВ 90-60-6,3-О-5(2400)-15,0/3000/380-660 |
АИР160S2 |
15,0 |
3000 |
2400 |
28,6 |
- |
|
|
|
ТДРВ 90-60-6,3-О-5(2400)-18,5/3000/380-660 |
АИР160М2 |
18,5 |
34,7 |
- |
|
|||
|
ТДРВ 90-60-6,3-О-5(2400)-22,0/3000/380-660 |
АИР180S2 |
22,0 |
41 |
- |
|
|||
|
ТДРВ 90-60-7,1-О-1-3,0/1000/220-380 |
АИР112МА6 |
3,0 |
1000 |
7,4 |
232 |
346 |
||
|
ТДРВ 90-60-7,1-О-1-4,0/1000/220-380 |
АИР112МВ6 |
4,0 |
9,75 |
236 |
351 |
|||
|
ТДРВ 90-60-7,1-О-1-7,5/1500/380-660 |
АИР132S4 |
7,5 |
1500 |
15,6 |
261 |
376 |
||
|
ТДРВ 90-60-7,1-О-1-11,0/1500/380-660 |
АИР132М4 |
11,0 |
22,5 |
273 |
388 |
|||
|
ТДРВ 90-60-7,1-О-5(1000)-3,0/1000/220-380 |
АИР112МА6 |
3,0 |
1000 |
7,4 |
- |
- |
||
|
ТДРВ 90-60-7,1-О-5(1000)-4,0/1000/220-380 |
АИР112МВ6 |
4,0 |
9,75 |
- |
- |
|||
|
ТДРВ 90-60-7,1-О-5(1071)-3,0/1500/220-380 |
АИР100S4 |
3,0 |
1500 |
1071 |
6,8 |
- |
- |
|
|
ТДРВ 90-60-7,1-О-5(1071)-4,0/1500/220-380 |
АИР100L4 |
4,0 |
8,8 |
- |
- |
|||
|
ТДРВ 90-60-7,1-О-5(1200)-4,0/1500/220-380 |
АИР100L4 |
4,0 |
1500 |
1200 |
8,8 |
- |
- |
|
|
ТДРВ 90-60-7,1-О-5(1200)-5,5/1500/220-380 |
АИР112М4 |
5,5 |
11,7 |
- |
- |
|||
|
ТДРВ 90-60-7,1-О-5(1339)-5,5/1500/220-380 |
АИР112М4 |
5,5 |
1500 |
1339 |
11,7 |
- |
- |
|
|
ТДРВ 90-60-7,1-О-5(1339)-7,5/1500/380-660 |
АИР132S4 |
7,5 |
15,6 |
- |
- |
|||
|
ТДРВ 90-60-7,1-О-5(1500)-7,5/1500/380-660 |
АИР132S4 |
7,5 |
1500 |
15,6 |
- |
- |
||
|
ТДРВ 90-60-7,1-О-5(1500)-11,0/1500/380-660 |
АИР132М4 |
11,0 |
22,5 |
- |
- |
|||
|
ТДРВ 90-60-7,1-О-5(1667)-11,0/3000/380-660 |
АИР132М4 |
11,0 |
3000 |
1667 |
22,5 |
- |
- |
|
|
ТДРВ 90-60-7,1-О-5(1667)-15,0/3000/380-660 |
АИР160S4 |
15,0 |
30 |
- |
- |
|||
|
ТДРВ 90-60-7,1-О-5(1875)-15,0/3000/380-660 |
АИР160S4 |
15,0 |
3000 |
1875 |
30 |
- |
- |
|
|
ТДРВ 90-60-7,1-О-5(1875)-18,5/3000/380-660 |
АИР160М4 |
18,5 |
36,3 |
- |
- |
|||
|
ТДРВ 90-60-7,1-О-5(2143)-22,0/3000/380-660 |
АИР180S4 |
22,0 |
3000 |
2143 |
43,2 |
- |
- |
|
|
ТДРВ 90-60-7,1-О-5(2143)-30,0/3000/380-660 |
АИР180М4 |
30,0 |
57,6 |
- |
- |
|||
|
ТДРВ 90-60-8,0-О-1-4,0/1000/220-380 |
АИР112МВ6 |
4,0 |
1000 |
9,75 |
287 |
418 |
||
|
ТДРВ 90-60-8,0-О-1-5,5/1000/380-660 |
АИР132S6 |
5,5 |
12,9 |
307 |
438 |
|||
|
ТДРВ 90-60-8,0-О-1-15,0/1500/380-660 |
АИР160S4 |
15,0 |
1500 |
30 |
363 |
494 |
||
|
ТДРВ 90-60-8,0-О-1-18,5/1500/380-660 |
АИР160М4 |
18,5 |
36,3 |
383 |
514 |
|||
|
ТДРВ 90-60-8,0-О-5(1000)-4,0/1000/220-380 |
АИР112МВ6 |
4,0 |
1000 |
9,75 |
- |
- |
||
|
ТДРВ 90-60-8,0-О-5(1000)-5,5/1000/380-660 |
АИР132S6 |
5,5 |
12,9 |
- |
- |
|||
|
ТДРВ 90-60-8,0-О-5(1071)-5,5/1500/220-380 |
АИР112М4 |
5,5 |
1500 |
1071 |
11,7 |
- |
- |
|
|
ТДРВ 90-60-8,0-О-5(1071)-7,5/1500/380-660 |
АИР132S4 |
7,5 |
15,6 |
- |
- |
|||
|
ТДРВ 90-60-8,0-О-5(1200)-7,5/1500/380-660 |
АИР132S4 |
7,5 |
1500 |
1200 |
15,6 |
- |
- |
|
|
ТДРВ 90-60-8,0-О-5(1200)-11,0/1500/380-660 |
АИР132М4 |
11,0 |
22,5 |
- |
- |
|||
|
ТДРВ 90-60-8,0-О-5(1339)-11,0/1500/380-660 |
АИР132М4 |
11,0 |
1500 |
1339 |
22,5 |
- |
- |
|
|
ТДРВ 90-60-8,0-О-5(1339)-15,0/1500/380-660 |
АИР160S4 |
15,0 |
30 |
- |
- |
|||
|
ТДРВ 90-60-8,0-О-5(1500)-15,0/1500/380-660 |
АИР160S4 |
15,0 |
1500 |
30 |
- |
- |
||
|
ТДРВ 90-60-8,0-О-5(1500)-18,5/1500/380-660 |
АИР160М4 |
18,5 |
36,3 |
- |
- |
|||
|
ТДРВ 90-60-8,0-О-5(1680)-18,5/1500/380-660 |
АИР160М4 |
18,5 |
1500 |
1680 |
36,3 |
- |
- |
|
|
ТДРВ 90-60-8,0-О-5(1680)-22,0/1500/380-660 |
АИР180S4 |
22,0 |
43,2 |
- |
- |
|||
|
ТДРВ 90-60-8,0-О-5(1875)-30,0/1500/380-660 |
АИР180М4 |
30,0 |
1500 |
1875 |
57,6 |
- |
- |
|
|
ТДРВ 90-60-8,0-О-5(1875)-37,0/1500/380-660 |
АИР200М4 |
37,0 |
70,2 |
- |
- |
|||
|
ТДРВ 90-60-9,0-О-1-7,5/1000/380-660 |
АИР132М6 |
7,5 |
1000 |
17,2 |
386 |
538 |
||
|
ТДРВ 90-60-9,0-О-1-11,0/1000/380-660 |
АИР160S6 |
11,0 |
24,5 |
422 |
574 |
|||
|
ТДРВ 90-60-9,0-О-1-30,0/1500/380-660 |
АИР180М4 |
30,0 |
1500 |
57,6 |
494 |
646 |
||
|
ТДРВ 90-60-9,0-О-1-37,0/1500/380-660 |
АИР200М4 |
37,0 |
70,2 |
564 |
716 |
|||
|
ТДРВ 90-60-9,0-О-5(1000)-7,5/1000/380-660 |
АИР132М6 |
7,5 |
1000 |
17,2 |
- |
- |
|
|
ТДРВ 90-60-9,0-О-5(1000)-11,0/1000/380-660 |
АИР160S6 |
11,0 |
24,5 |
- |
- |
||
|
ТДРВ 90-60-9,0-О-5(1071)-11,0/1500/380-660 |
АИР132М4 |
11,0 |
1500 |
1071 |
22,5 |
- |
- |
|
ТДРВ 90-60-9,0-О-5(1071)-15,0/1500/380-660 |
АИР160S4 |
15,0 |
30 |
- |
- |
||
|
ТДРВ 90-60-9,0-О-5(1200)-15,0/1500/380-660 |
АИР160S4 |
15,0 |
1500 |
1200 |
30 |
|
- |
|
ТДРВ 90-60-9,0-О-5(1200)-18,5/1500/380-660 |
АИР160М4 |
18,5 |
36,3 |
- |
- |
||
|
ТДРВ 90-60-9,0-О-5(1339)-18,5/1500/380-660 |
АИР160М4 |
18,5 |
1500 |
1339 |
36,3 |
- |
- |
|
ТДРВ 90-60-9,0-О-5(1339)-22,0/1500/380-660 |
АИР180S4 |
22,0 |
43,2 |
- |
- |
||
|
ТДРВ 90-60-9,0-О-5(1500)-30,0/1500/380-660 |
АИР180М4 |
30,0 |
1500 |
57,6 |
- |
- |
|
|
ТДРВ 90-60-9,0-О-5(1500)-37,0/1500/380-660 |
АИР200М4 |
37,0 |
70,2 |
- |
- |
||
|
ТДРВ 90-60-9,0-О-5(1680)-37,0/1500/380-660 |
АИР200М4 |
37,0 |
1500 |
1680 |
70,2 |
- |
- |
|
ТДРВ 90-60-9,0-О-5(1680)-45,0/1500/380-660 |
АИР200L4 |
45,0 |
84,9 |
- |
- |
||
|
ТДРВ 90-60-10,0-О-1-5,5/750/380-660 |
АИР132М8 |
5,5 |
750 |
13,6 |
452 |
627 |
|
|
ТДРВ 90-60-10,0-О-1-7,5/750/380-660 |
АИР160S8 |
7,5 |
17,8 |
491 |
666 |
||
|
ТДРВ 90-60-10,0-О-1-15,0/1000/380-660 |
АИР160М6 |
15,0 |
1000 |
31,6 |
522 |
697 |
|
|
ТДРВ 90-60-10,0-О-1-18,5/1000/380-660 |
АИР180М6 |
18,5 |
38,6 |
546 |
721 |
||
|
ТДРВ 90-60-10,0-О-1-45,0/1500/380-660 |
АИР200L4 |
45,0 |
1500 |
84,9 |
662 |
837 |
|
|
ТДРВ 90-60-10,0-О-1-55,0/1500/380-660 |
АИР225М4 |
55,0 |
103 |
712 |
887 |
||
|
ТДРВ 90-60-10,0-О-5(750)-5,5/750/380-660 |
АИР132М8 |
5,5 |
750 |
13,6 |
- |
- |
|
|
ТДРВ 90-60-10,0-О-5(750)-7,5/750/380-660 |
АИР160S8 |
7,5 |
17,8 |
- |
- |
||
|
ТДРВ 90-60-10,0-О-5(800)-7,5/1000/380-660 |
АИР132М6 |
7,5 |
1000 |
800 |
17,2 |
- |
- |
|
ТДРВ 90-60-10,0-О-5(800)-11,0/1000/380-660 |
АИР160S6 |
11,0 |
24,5 |
- |
- |
||
|
ТДРВ 90-60-10,0-О-5(893)-11,0/1000/380-660 |
АИР160S6 |
11,0 |
1000 |
893 |
24,5 |
- |
- |
|
ТДРВ 90-60-10,0-О-5(893)-15,0/1000/380-660 |
АИР160М6 |
15,0 |
31,6 |
- |
- |
||
|
ТДРВ 90-60-10,0-О-5(1000)-15,0/1000/380-660 |
АИР160М6 |
15,0 |
1000 |
31,6 |
- |
- |
|
|
ТДРВ 90-60-10,0-О-5(1000)-18,5/1000/380-660 |
АИР180М6 |
18,5 |
38,6 |
- |
- |
||
|
ТДРВ 90-60-10,0-О-5(1071)-18,5/1500/380-660 |
АИР160М4 |
18,5 |
1500 |
1071 |
36,3 |
- |
- |
|
ТДРВ 90-60-10,0-О-5(1071)-22,0/1500/380-660 |
АИР180S4 |
22,0 |
43,2 |
- |
- |
||
|
ТДРВ 90-60-10,0-О-5(1200)-22,0/1500/380-660 |
АИР180S4 |
22,0 |
1500 |
1200 |
43,2 |
- |
- |
|
ТДРВ 90-60-10,0-О-5(1200)-30,0/1500/380-660 |
АИР180М4 |
30,0 |
57,6 |
- |
- |
||
|
ТДРВ 90-60-10,0-О-5(1339)-30,0/1500/380-660 |
АИР180М4 |
30,0 |
1500 |
1339 |
57,6 |
- |
- |
|
ТДРВ 90-60-10,0-О-5(1339)-37,0/1500/380-660 |
АИР200М4 |
37,0 |
70,2 |
- |
- |
||
|
ТДРВ 90-60-10,0-О-5(1500)-45,0/1500/380-660 |
АИР200L4 |
45,0 |
1500 |
84,9 |
- |
- |
|
|
ТДРВ 90-60-10,0-О-5(1500)-55,0/1500/380-660 |
АИР225М4 |
55,0 |
103 |
- |
- |
||
|
ТДРВ 90-60-11,2-О-1-11,0/750/380-660 |
АИР160М8 |
11,0 |
750 |
25,5 |
616 |
884 |
|
|
ТДРВ 90-60-11,2-О-1-15,0/750/380-660 |
АИР180М8 |
15,0 |
34,1 |
646 |
914 |
||
|
ТДРВ 90-60-11,2-О-1-22,0/1000/380-660 |
АИР200М6 |
22,0 |
1000 |
44,7 |
688 |
956 |
|
|
ТДРВ 90-60-11,2-О-1-30,0/1000/380-660 |
АИР200L6 |
30,0 |
59,3 |
730 |
998 |
||
|
ТДРВ 90-60-11,2-О-5(750)-11,0/750/380-660 |
АИР160М8 |
11,0 |
750 |
25,5 |
- |
- |
|
|
ТДРВ 90-60-11,2-О-5(750)-15,0/750/380-660 |
АИР180М8 |
15,0 |
34,1 |
- |
- |
||
|
ТДРВ 90-60-11,2-О-5(800)-11,0/1000/380-660 |
АИР160S6 |
11,0 |
1000 |
800 |
24,5 |
- |
- |
|
ТДРВ 90-60-11,2-О-5(800)-15,0/1000/380-660 |
АИР160М6 |
15,0 |
31,6 |
- |
- |
||
|
ТДРВ 90-60-11,2-О-5(800)-18,5/1000/380-660 |
АИР180М6 |
18,5 |
38,6 |
- |
- |
||
|
ТДРВ 90-60-11,2-О-5(893)-15,0/1000/380-660 |
АИР160М6 |
15,0 |
1000 |
893 |
31,6 |
- |
- |
|
ТДРВ 90-60-11,2-О-5(893)-18,5/1000/380-660 |
АИР180М6 |
18,5 |
38,6 |
- |
- |
||
|
ТДРВ 90-60-11,2-О-5(893)-22,0/1000/380-660 |
АИР200М6 |
22,0 |
44,7 |
- |
- |
||
|
ТДРВ 90-60-11,2-О-5(1000)-22,0/1000/380-660 |
АИР200М6 |
22,0 |
1000 |
44,7 |
- |
- |
|
|
ТДРВ 90-60-11,2-О-5(1000)-30,0/1000/380-660 |
АИР200L6 |
30,0 |
59,3 |
- |
- |
||
|
ТДРВ 90-60-11,2-О-5(1071)-30,0/1500/380-660 |
АИР180М4 |
30,0 |
1500 |
1071 |
57,6 |
- |
- |
|
ТДРВ 90-60-11,2-О-5(1071)-37,0/1500/380-660 |
АИР200М4 |
37,0 |
70,2 |
- |
- |
||
|
ТДРВ 90-60-11,2-О-5(1200)-37,0/1500/380-660 |
АИР200М4 |
37,0 |
1500 |
1200 |
70,2 |
- |
- |
|
ТДРВ 90-60-11,2-О-5(1200)-45,0/1500/380-660 |
АИР200L4 |
45,0 |
84,9 |
- |
- |
||
|
ТДРВ 90-60-11,2-О-5(1339)-55,0/1500/380-660 |
АИР225М4 |
55,0 |
1500 |
1339 |
103 |
- |
- |
|
ТДРВ 90-60-11,2-О-5(1339)-75,0/1500/380-660 |
АИР250S4 |
75,0 |
138,3 |
- |
- |
||
* Технические характеристики исполнения 3 соответствуют исполнению 1.
Электрические
схемы подключения вентиляторов в сеть 380 В

* В
вентиляторах с номинальным напряжением ∆/Y 380В/660В предусмотрена возможность
запуска пониженным напряжением по схеме Y-∆. Для получения более подробной
информации по подключению, обратитесь в отдел технической поддержки.
Не представленные в наличии модели доступны к поставке под заказ
Оповестить о поступлении
Всю необходимую информацию также можно получить по телефону «горячей линии»
+ 7 800 200 93 96или по телефону
+7 800 505 08 67 получить консультацию
