Компрессорно-конденсаторный блок серий RCC/RCH
Компрессорно-конденсаторные блоки серий RCC/RCH представляют собой совокупность компрессора, фреонового конденсатора, осевого вентилятора и блока автоматики объединенных в одном корпусе. ККБ данной серии является важной и неотъемлемой частью системы кондиционирования воздуха используемой в составе приточной или приточно-вытяжной установки, а так же независимой секции фреонового охлаждения.
Работа компрессорно-конденсаторного блока основана на принципе сжатия хладагента (фреона) посредством компрессора, создания высокого давления, а следовательно и высокой температуры хладагента. Фреоновый конденсатор и осевой вентилятор служит для охлаждения сжатого газа при переходе его в другое агрегатное состояние - этот процесс называется «конденсирование» в результате которого хладагент переходит в жидкое состояние.
Одним из преимуществ компрессорно-конденсаторного блока являются его компактность, небольшой вес и универсальность, что упрощает его установку и дальнейшую эксплуатацию, а благодаря повышенной эффективности и экономичности позволяет снижать потребление электроэнергии по сравнению с традиционными системами охлаждения.
Технические характеристики ККБ RCC/RCH (3,2...45)
|
Типоразмер ККБ |
RCC- 3,2-410 |
RCC- 5,0-410 |
RCC- 6,0-410 |
RCH- 7,2-410 |
RCH-13,0-410 |
RCC- 22-410 |
RCC- 28-410 |
RCC- 35-410 |
RCC- 45-410 |
||
|
Производительность, кВт* |
Охлаждение, кВт |
3,2 |
5,0 |
6,0 |
7,2 |
13,0 |
22,0 |
28,0 |
35,0 |
45,0 |
|
|
Обогрев, кВт |
- |
- |
- |
7,7 |
14,5 |
- |
- |
- |
- |
||
|
Количество холодильных контуров |
1 |
1 |
1 |
1 |
1 |
1 |
1 |
1 |
1 |
||
|
Питание |
220-240 В~, 1 Ф, 50 Гц |
380-400 В~, 3 Ф, 50 Гц |
|||||||||
|
Рекомендованное сечение (мм2)** |
3x1,5 |
3x2,5 |
3x2,5 |
3x2,5 |
5x2,5 |
5x2,5 |
5x2,5 |
5x2,5 |
5x4,0 |
||
|
Компрессор |
Тип / Количество компрессоров, шт |
Ротационный / 1 |
Спиральный / 1 |
||||||||
|
Потребляемая мощность, Вт |
|||||||||||
|
Охлаждение |
1250 |
1800 |
2150 |
2450 |
3950 |
6230 |
8410 |
10910 |
13790 |
||
|
Обогрев |
- |
- |
- |
2350 |
4050 |
- |
- |
- |
- |
||
|
Максимальный рабочий ток, А |
9,0 |
12,8 |
15,5 |
18,5 |
12,6 |
11,77 |
15,54 |
20,14 |
26,32 |
||
|
Емкость рабочего конденсатора, мкФ |
40 |
35 |
50 |
60 |
- |
- |
- |
- |
- |
||
|
Встроенная тепловая защита |
да |
да |
да |
да |
да |
да |
да |
да |
да |
||
|
Вентилятор |
Количество вентиляторов, шт |
1 |
1 |
1 |
1 |
2 |
1 |
1 |
1 |
1 |
|
|
Напряжение питания, В |
220-240 В~, 1 Ф, 50 Гц |
||||||||||
|
Электрические характеристики |
Максимальный ток, А |
9,00 |
12,80 |
15,50 |
17,00 |
12,60 |
15,50 |
20,00 |
24,00 |
30,80 |
|
|
Максимальная потребляемая мощность, кВт |
1,45 |
2,35 |
2,85 |
3,20 |
6,00 |
9,20 |
11,80 |
15,00 |
18,1 |
||
|
Присоединительные размеры |
Жидкостная линия |
дюйм |
1/4 |
1/4 |
1/4 |
1/4 |
3/8 |
1/2 |
5/8 |
5/8 |
5/8 |
|
мм |
6,35 |
6,35 |
6,35 |
6,35 |
9,52 |
12,7 |
15,87 |
15,87 |
15,87 |
||
|
Газовая линия |
дюйм |
3/8 |
1/2 |
1/2 |
1/2 |
3/4 |
7/8 |
1 1/8 |
1 1/8 |
1 1/8 |
|
|
мм |
9,52 |
12,7 |
12,7 |
12,7 |
19,05 |
22,22 |
28,57 |
28,57 |
28,57 |
||
|
Трубы для хладагента |
Макс. длина трубопровода, м |
15 |
15 |
15 |
15 |
15 |
50 |
50 |
50 |
50 |
|
|
Макс. перепад высот, м |
5 |
5 |
5 |
5 |
5 |
25 |
25 |
25 |
25 |
||
|
Тип соединения |
Под вальцовку |
Под пайку |
|||||||||
|
Хладагент |
Тип заправки |
Фреон |
Фреон |
Фреон |
Фреон |
Фреон |
Фреон |
Фреон |
Фреон |
Фреон |
|
|
Марка хладагента / гр. |
R410A / 400 |
R410A / 830 |
R410A / 1060 |
R410A / 1460 |
R410A / 3300 |
R410A / 5000 |
R410A / 6000 |
R410A / 7000 |
R410A / 10000 |
||
|
Габаритные размеры*** |
Ширина (L), мм |
728 |
890 |
890 |
930 |
1032 |
1060 |
1060 |
1060 |
1060 |
|
|
Высота (H), мм |
503 |
546 |
546 |
651 |
1255 |
865 |
991 |
991 |
991 |
||
|
Глубина (C), мм |
286 |
344 |
344 |
396 |
422 |
1036 |
1036 |
1126 |
1176 |
||
|
Транспортировочные габариты*** |
Ширина (L), мм |
798 |
934 |
934 |
1010 |
1125 |
1070 |
1070 |
1070 |
1070 |
|
|
Высота (H), мм |
554 |
608 |
608 |
735 |
1385 |
900 |
1050 |
1050 |
1050 |
||
|
Глубина (C), мм |
321 |
382 |
382 |
435 |
485 |
1100 |
1100 |
1140 |
1140 |
||
|
Транспортировочная масса, кг |
27 |
36 |
38 |
52 |
108 |
163 |
175 |
210 |
246 |
||
|
Уровень звукового давления, дБ (А) |
51 |
54 |
54 |
59 |
65 |
67 |
67 |
68 |
71 |
||
* Данные указаны при следующих параметрах: температура окр.воздуха +35°С, температура кипения фреона +7°С.
** Расчетное сечение кабеля при следующих условиях::
- длина линии питания 50 м.
- 380-400 В~, 3 Ф, 50 Гц
- открытый способ прокладки кабеля.
*** Размеры ККБ с обвязкой и с дополнительными опциями не изменяются.
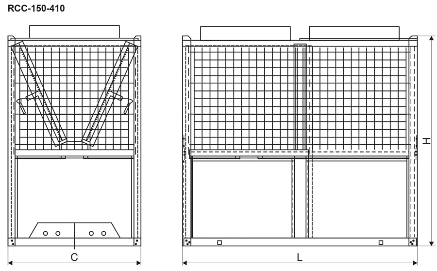
Габаритные размеры ККБ RCC/RCH (3,2...45)


Технические характеристики ККБ RCC (53...300)
|
Типоразмер ККБ |
RCC-53-410 |
RCC-61-410 |
RCC-70-410 |
RCH-105-410 |
RCH-150-410 |
RCC-300-410 |
||
|
Производительность, кВт* |
Охлаждение, кВт |
53,68 |
61,66 |
70,79 |
105,95 |
150,44 |
300,0 |
|
|
Обогрев, кВт |
- |
- |
- |
- |
- |
- |
||
|
Количество холодильных контуров |
2 |
2 |
2 |
2 |
2 |
4 |
||
|
Питание |
380-400 В~, 3 Ф, 50 Гц |
|||||||
|
Рекомендованное сечение (мм2)** |
5х6,0 |
5х10,0 |
5х10,0 |
5х16,0 |
5х25,0 |
5х50,0 |
||
|
Компрессор |
Тип / Количество компрессоров, шт |
Спиральный / 2 |
Спиральный / 4 |
|||||
|
Потребляемая мощность, Вт |
||||||||
|
Охлаждение |
7210х2 |
9070х2 |
10800х2 |
13759х2 |
20000х2 |
20000х4 |
||
|
Обогрев |
- |
- |
- |
- |
- |
- |
||
|
Рабочий ток, А |
14,5х2 |
15,8х2 |
19х2 |
24,1х2 |
45х2 |
45х4 |
||
|
Емкость рабочего конденсатора, мкФ |
- |
- |
- |
- |
- |
- |
||
|
Встроенная тепловая защита |
да |
да |
да |
да |
да |
да |
||
|
Вентилятор |
Количество вентиляторов, шт |
2 |
2 |
2 |
2 |
2 |
4 |
|
|
Напряжение питания, В |
380-400 В~, 3 Ф, 50 Гц |
|||||||
|
Электрические характеристики |
Максимальный ток, А |
44,5 |
57 |
58 |
95 |
105 |
210 |
|
|
Максимальная потребляемая мощность, кВт |
23,6 |
30,8 |
40 |
54 |
55 |
110 |
||
|
Присоединительные размеры |
Жидкостная линия |
дюйм |
5/8"х2 |
5/8"х2 |
5/8"х2 |
5/8"х2 |
3/4"х2 |
3/4"х4 |
|
мм |
15,88х2 |
15,88х2 |
15,88х2 |
15,88х2 |
19х2 |
19х4 |
||
|
Газовая линия |
дюйм |
1 1/8"х2 |
1 1/8"х2 |
1 1/8"х2 |
1 1/8"х2 |
1 3/8"х2 |
1 3/8"х4 |
|
|
мм |
28х2 |
28х2 |
28х2 |
28х2 |
35х2 |
35х4 |
||
|
Трубы для хладагента |
Макс. длина трубопровода, м |
30 |
30 |
30 |
30 |
30 |
30 |
|
|
Макс. перепад высот, м |
30 |
30 |
30 |
30 |
30 |
30 |
||
|
Тип соединения |
Под пайку |
|||||||
|
Хладагент |
Тип заправки |
Фреон |
Фреон |
Фреон |
Фреон |
Фреон |
Фреон |
|
|
Марка хладагента / гр. |
R410A /3 800*2 |
R410A /4 300*2 |
R410A /5 000*2 |
R410A /5 500*2 |
R410A /9 500*2 |
R410A /10 000*4 |
||
|
Габаритные размеры*** |
Ширина (L), мм |
1740 |
1900 |
1940 |
2000 |
2270 |
2450 |
|
|
Высота (H), мм |
1036 |
1086 |
1136 |
1186 |
2130 |
2230 |
||
|
Глубина (C), мм |
1000 |
1000 |
1000 |
1000 |
1286 |
2230 |
||
|
Транспортировочные габариты*** |
Ширина (L), мм |
1790 |
1950 |
1990 |
2050 |
2320 |
2450 |
|
|
Высота (H), мм |
1090 |
1140 |
1190 |
1240 |
2380 |
2400 |
||
|
Глубина (C), мм |
1100 |
1100 |
1100 |
1100 |
1340 |
2250 |
||
|
Масса оборудования\трансп., кг |
340 \ 350 |
370 \ 380 |
450 \ 460 |
510 \ 520 |
850 |
1850 |
||
|
Уровень звукового давления, дБ (А) |
73 |
76 |
76 |
78 |
74 |
78 |
||
* Данные указаны при следующих параметрах: температура окр.воздуха +35°С, температура кипения фреона +7°С.
** Расчетное сечение кабеля при следующих условиях::
- длина линии питания 50 м.
- 380-400 В~, 3 Ф, 50 Гц
- открытый способ прокладки кабеля.
*** Размеры ККБ с обвязкой и с дополнительными опциями не изменяются.
Габаритные размеры ККБ RCC (53...300)



Холодопроизводительность ККБ RCC/RCH, в зависимости от температуры, кВт
|
Температура наружного воздуха, °С |
Температура конденсации фреона, °С |
Температура кипения, °С |
+12,5 °С |
+12 °С |
+10 °С |
+8 °С |
+7 °С |
+5 °С |
+4 °С |
+2 °С |
|
|
RCC-3.2-410 |
|||||||||||
|
+20 °С |
+35 °С |
Холодопроизводительность |
кВт |
4,69 |
4,62 |
4,37 |
4,06 |
3,91 |
3,70 |
3,57 |
3,35 |
|
Потребляемая мощность |
кВт |
0,83 |
0,83 |
0,85 |
0,87 |
0,88 |
0,88 |
0,89 |
0,89 |
||
|
+25 °С |
+40 °С |
Холодопроизводительность |
кВт |
4,49 |
4,40 |
4,14 |
3,89 |
3,77 |
3,52 |
3,40 |
3,20 |
|
Потребляемая мощность |
кВт |
0,92 |
0,93 |
0,94 |
0,95 |
0,96 |
0,97 |
0,97 |
0,97 |
||
|
+30 °С |
+45 °С |
Холодопроизводительность |
кВт |
4,27 |
4,20 |
3,94 |
3,73 |
3,60 |
3,37 |
3,25 |
3,03 |
|
Потребляемая мощность |
кВт |
1,03 |
1,03 |
1,03 |
1,04 |
1,04 |
1,05 |
1,05 |
1,04 |
||
|
+35 °С |
+50 °С |
Холодопроизводительность |
кВт |
4,04 |
3,99 |
3,76 |
3,51 |
3,40 |
3,20 |
3,09 |
2,89 |
|
Потребляемая мощность |
кВт |
1,13 |
1,13 |
1,13 |
1,13 |
1,13 |
1,13 |
1,12 |
1,11 |
||
|
+40 °С |
+55 °С |
Холодопроизводительность |
кВт |
3,85 |
3,78 |
3,55 |
3,30 |
3,20 |
3.00 |
2,92 |
2,73 |
|
Потребляемая мощность |
кВт |
1,23 |
1,23 |
1,22 |
1,22 |
1,22 |
1,21 |
1,2 |
1,19 |
||
|
RCC-5.0-410 |
|||||||||||
|
+15 °С |
+30 °С |
Холодопроизводительность |
кВт |
7,83 |
7,71 |
7,20 |
6,71 |
6,51 |
6,07 |
5,95 |
5,50 |
|
Потребляемая мощность |
кВт |
0,83 |
0,85 |
0,89 |
0,90 |
0,91 |
0,93 |
0,94 |
0,95 |
||
|
+20 °С |
+35 °С |
Холодопроизводительность |
кВт |
7,42 |
7,33 |
6,83 |
6,39 |
6,18 |
5,75 |
5,48 |
5,22 |
|
Потребляемая мощность |
кВт |
0,99 |
1,00 |
1,03 |
1,04 |
1,05 |
1,06 |
1,06 |
1,07 |
||
|
+25 °С |
+40 °С |
Холодопроизводительность |
кВт |
7,03 |
6,89 |
6,45 |
6,04 |
5,83 |
5,41 |
5,22 |
4,84 |
|
Потребляемая мощность |
кВт |
1,16 |
1,17 |
1,18 |
1,19 |
1,19 |
1,20 |
1,20 |
1,20 |
||
|
+30 °С |
+45 °С |
Холодопроизводительность |
кВт |
6,59 |
6,48 |
6,05 |
5,63 |
5,45 |
5,07 |
4,92 |
4,57 |
|
Потребляемая мощность |
кВт |
1,31 |
1,31 |
1,32 |
1,32 |
1,32 |
1,32 |
1,32 |
1,31 |
||
|
+35 °С |
+50 °С |
Холодопроизводительность |
кВт |
6,15 |
6,04 |
5,65 |
5,25 |
5,07 |
4,72 |
4,57 |
4,22 |
|
Потребляемая мощность |
кВт |
1,46 |
1,46 |
1,47 |
1,46 |
1,46 |
1,46 |
1,46 |
1,44 |
||
|
+40 °С |
+55 °С |
Холодопроизводительность |
кВт |
5,69 |
5,6 |
5,22 |
4,87 |
4,69 |
4,36 |
4,19 |
3,87 |
|
Потребляемая мощность |
кВт |
1,62 |
1,62 |
1,62 |
1,61 |
1,60 |
1,60 |
1,60 |
1,58 |
||
|
+45 °С |
+60 °С |
Холодопроизводительность |
кВт |
5,22 |
5,13 |
4,79 |
4,45 |
4,28 |
3,99 |
3,84 |
3,55 |
|
Потребляемая мощность |
кВт |
1,80 |
1,80 |
1,79 |
1,78 |
1,77 |
1,75 |
1,74 |
1,73 |
||
|
RCC-6.0-410 |
|||||||||||
|
+15 °С |
+30 °С |
Холодопроизводительность |
кВт |
8,90 |
8,80 |
8,20 |
7,62 |
7,48 |
6,98 |
6,70 |
6,25 |
|
Потребляемая мощность |
кВт |
0,96 |
0,97 |
1,00 |
1,04 |
1,06 |
1,08 |
1,09 |
1,10 |
||
|
+20 °С |
+35 °С |
Холодопроизводительность |
кВт |
8,40 |
8,25 |
7,73 |
7,30 |
7,00 |
6,50 |
6,25 |
5,80 |
|
Потребляемая мощность |
кВт |
1,18 |
1,19 |
1,20 |
1,22 |
1,23 |
1,24 |
1,25 |
1,25 |
||
|
+25 °С |
+40 °С |
Холодопроизводительность |
кВт |
7,98 |
7,88 |
7,40 |
6,80 |
6,52 |
6,13 |
5,90 |
5,46 |
|
Потребляемая мощность |
кВт |
1,36 |
1,36 |
1,37 |
1,38 |
1,39 |
1,39 |
1,39 |
1,39 |
||
|
+30 °С |
+45 °С |
Холодопроизводительность |
кВт |
7,50 |
7,44 |
6,88 |
6,40 |
6,22 |
5,80 |
5,50 |
5,07 |
|
Потребляемая мощность |
кВт |
1,51 |
1,51 |
1,52 |
1,52 |
1,53 |
1,53 |
1,52 |
1,52 |
||
|
+35 °С |
+50 °С |
Холодопроизводительность |
кВт |
7,00 |
6,90 |
6,40 |
5,91 |
5,75 |
5,40 |
5,10 |
4,80 |
|
Потребляемая мощность |
кВт |
1,69 |
1,70 |
1,70 |
1,70 |
1,70 |
1,70 |
1,69 |
1,68 |
||
|
+40 °С |
+55 °С |
Холодопроизводительность |
кВт |
6,45 |
6,35 |
5,85 |
5,52 |
5,40 |
5,00 |
4,80 |
4,50 |
|
Потребляемая мощность |
кВт |
1,90 |
1,90 |
1,90 |
1,90 |
1,89 |
1,86 |
1,85 |
1,84 |
||
|
+45 °С |
+60 °С |
Холодопроизводительность |
кВт |
5,90 |
5,80 |
5,47 |
5,04 |
4,97 |
4,59 |
4,48 |
4,12 |
|
Потребляемая мощность |
кВт |
2,12 |
2,12 |
2,11 |
2,10 |
2,09 |
2,07 |
2,06 |
2,03 |
||
|
RCH-7.2-410 |
|||||||||||
|
+15 °С |
+30 °С |
Холодопроизводительность |
кВт |
12,28 |
12,08 |
11,28 |
10,59 |
10,17 |
9,52 |
9,20 |
8,57 |
|
Потребляемая мощность |
кВт |
1,14 |
1,15 |
1,21 |
1,26 |
1,29 |
1,31 |
1,32 |
1,33 |
||
|
+20 °С |
+35 °С |
Холодопроизводительность |
кВт |
11,64 |
11,49 |
10,71 |
10,03 |
9,58 |
9,03 |
8,73 |
8,14 |
|
Потребляемая мощность |
кВт |
1,39 |
1,40 |
1,43 |
1,46 |
1,48 |
1,50 |
1,50 |
1,52 |
||
|
+25 °С |
+40 °С |
Холодопроизводительность |
кВт |
11,03 |
10,83 |
10,13 |
9,46 |
9,14 |
8,53 |
8,22 |
7,66 |
|
Потребляемая мощность |
кВт |
1,61 |
1,63 |
1,66 |
1,68 |
1,69 |
1,70 |
1,70 |
1,71 |
||
|
+30 °С |
+45 °С |
Холодопроизводительность |
кВт |
10,37 |
10,16 |
9,52 |
8,88 |
8,56 |
8,00 |
7,71 |
7,12 |
|
Потребляемая мощность |
кВт |
1,87 |
1,88 |
1,89 |
1,90 |
1,91 |
1,92 |
1,91 |
1,91 |
||
|
+35 °С |
+50 °С |
Холодопроизводительность |
кВт |
9,68 |
9,51 |
8,90 |
8,25 |
7,97 |
7,46 |
7,18 |
6,65 |
|
Потребляемая мощность |
кВт |
2,10 |
2,11 |
2,12 |
2,12 |
2,12 |
2,11 |
2,11 |
2,10 |
||
|
+40 °С |
+55 °С |
Холодопроизводительность |
кВт |
9,01 |
8,83 |
8,25 |
7,67 |
7,43 |
6,91 |
6,66 |
6,18 |
|
Потребляемая мощность |
кВт |
2,37 |
2,37 |
2,38 |
2,38 |
2,38 |
2,37 |
2,36 |
2,35 |
||
|
+45 °С |
+60 °С |
Холодопроизводительность |
кВт |
8,25 |
8,12 |
7,58 |
7,02 |
6,77 |
6,34 |
6,09 |
5,66 |
|
Потребляемая мощность |
кВт |
2,66 |
2,66 |
2,65 |
2,63 |
2,62 |
2,61 |
2,60 |
2,59 |
||
|
RCH-13.0-410 |
|||||||||||
|
+15 °С |
+30 °С |
Холодопроизводительность |
кВт |
18,91 |
18,60 |
17,26 |
16,10 |
15,65 |
14,50 |
14,00 |
13,00 |
|
Потребляемая мощность |
кВт |
2,13 |
2,15 |
2,22 |
2,30 |
2,32 |
2,35 |
2,37 |
2,40 |
||
|
+20 °С |
+35 °С |
Холодопроизводительность |
кВт |
17,92 |
17,52 |
16,33 |
15,30 |
14,81 |
13,73 |
13,15 |
12,30 |
|
Потребляемая мощность |
кВт |
2,45 |
2,48 |
2,54 |
2,60 |
2,62 |
2,67 |
2,68 |
2,71 |
||
|
+25 °С |
+40 °С |
Холодопроизводительность |
кВт |
16,90 |
16,50 |
15,38 |
14,32 |
13,97 |
12,93 |
12,47 |
11,70 |
|
Потребляемая мощность |
кВт |
2,81 |
2,83 |
2,87 |
2,90 |
2,92 |
2,95 |
2,97 |
3,00 |
||
|
+30 °С |
+45 °С |
Холодопроизводительность |
кВт |
15,80 |
15,40 |
14,41 |
13,45 |
13,00 |
12,11 |
11,80 |
11,00 |
|
Потребляемая мощность |
кВт |
3,20 |
3,21 |
3,23 |
3,25 |
3,25 |
3,26 |
3,26 |
3,25 |
||
|
+35 °С |
+50 °С |
Холодопроизводительность |
кВт |
14,60 |
14,35 |
13,41 |
12,50 |
12,02 |
11,25 |
10,93 |
10,10 |
|
Потребляемая мощность |
кВт |
3,57 |
3,58 |
3,59 |
3,60 |
3,60 |
3,59 |
3,58 |
3,54 |
||
|
+40 °С |
+55 °С |
Холодопроизводительность |
кВт |
13,51 |
13,20 |
12,38 |
11,56 |
11,10 |
10,37 |
10,00 |
9,25 |
|
Потребляемая мощность |
кВт |
4,00 |
4,00 |
4,00 |
3,98 |
3,96 |
3,92 |
3,91 |
3,88 |
||
|
+45 °С |
+60 °С |
Холодопроизводительность |
кВт |
12,40 |
12,10 |
11,33 |
10,54 |
10,14 |
9,44 |
9,03 |
8,40 |
|
Потребляемая мощность |
кВт |
4,48 |
4,47 |
4,45 |
4,42 |
4,40 |
4,35 |
4,32 |
4,29 |
||
|
Температура наружного воздуха, °С |
Температура кипения, °С |
+10 °С |
+8 °С |
+7 °С |
+5 °С |
+4 °С |
+2 °С |
|
|
RCC-22-410 |
||||||||
|
+25 °С |
Холодопроизводительность |
кВт |
27,86 |
26,13 |
25,37 |
23,89 |
23,01 |
21,74 |
|
Потребляемая мощность |
кВт |
6,80 |
6,41 |
6,20 |
5,92 |
5,68 |
5,43 |
|
|
+30 °С |
Холодопроизводительность |
кВт |
26,53 |
24,88 |
24,16 |
22,75 |
21,91 |
20,71 |
|
Потребляемая мощность |
кВт |
7,23 |
6,82 |
6,59 |
6,30 |
6,04 |
5,77 |
|
|
+32 °С |
Холодопроизводительность |
кВт |
25,63 |
24,04 |
23,34 |
21,98 |
21,17 |
20,01 |
|
Потребляемая мощность |
кВт |
7,53 |
7,11 |
6,87 |
6,56 |
6,30 |
6,01 |
|
|
+35 °С |
Холодопроизводительность |
кВт |
24,84 |
23,43 |
22,75 |
21,39 |
20,64 |
19,50 |
|
Потребляемая мощность |
кВт |
7,80 |
7,36 |
7,11 |
6,79 |
6,52 |
6,22 |
|
|
+40 °С |
Холодопроизводительность |
кВт |
23,35 |
22,03 |
21,39 |
20,10 |
19,40 |
18,33 |
|
Потребляемая мощность |
кВт |
8,31 |
7,84 |
7,57 |
7,23 |
6,94 |
6,63 |
|
|
+43 °С |
Холодопроизводительность |
кВт |
22,18 |
20,93 |
20,32 |
19,10 |
18,43 |
17,41 |
|
Потребляемая мощность |
кВт |
8,64 |
8,15 |
7,87 |
7,52 |
7,22 |
6,89 |
|
|
+45 °С |
Холодопроизводительность |
кВт |
20,96 |
19,77 |
19,20 |
18,05 |
17,41 |
16,46 |
|
Потребляемая мощность |
кВт |
9,03 |
8,52 |
8,23 |
7,86 |
7,54 |
7,20 |
|
|
RCC-28-410 |
||||||||
|
+25 °С |
Холодопроизводительность |
кВт |
35,08 |
32,90 |
31,94 |
30,09 |
28,98 |
27,38 |
|
Потребляемая мощность |
кВт |
8,58 |
8,02 |
7,67 |
7,33 |
7,04 |
6,72 |
|
|
+30 °С |
Холодопроизводительность |
кВт |
33,41 |
31,34 |
30,42 |
28,65 |
27,60 |
26,08 |
|
Потребляемая мощность |
кВт |
9,18 |
8,58 |
8,21 |
7,84 |
7,53 |
7,19 |
|
|
+32 °С |
Холодопроизводительность |
кВт |
32,28 |
30,28 |
29,39 |
27,69 |
26,66 |
25,20 |
|
Потребляемая мощность |
кВт |
9,61 |
8,98 |
8,60 |
8,21 |
7,88 |
7,53 |
|
|
+35 °С |
Холодопроизводительность |
кВт |
31,28 |
29,51 |
28,65 |
26,93 |
25,99 |
24,56 |
|
Потребляемая мощность |
кВт |
10,01 |
9,36 |
8,95 |
8,55 |
8,21 |
7,84 |
|
|
+40 °С |
Холодопроизводительность |
кВт |
29,40 |
27,74 |
26,93 |
25,32 |
24,43 |
23,09 |
|
Потребляемая мощность |
кВт |
10,66 |
9,96 |
9,54 |
9,11 |
8,74 |
8,35 |
|
|
+43 °С |
Холодопроизводительность |
кВт |
27,93 |
26,35 |
25,58 |
24,05 |
23,21 |
21,93 |
|
Потребляемая мощность |
кВт |
11,19 |
10,46 |
10,01 |
9,56 |
9,18 |
8,77 |
|
|
+45 °С |
Холодопроизводительность |
кВт |
26,40 |
24,90 |
24,18 |
22,73 |
21,93 |
20,73 |
|
Потребляемая мощность |
кВт |
11,70 |
10,93 |
10,46 |
9,99 |
9,59 |
9,16 |
|
|
RCC-35-410 |
||||||||
|
+25 °С |
Холодопроизводительность |
кВт |
43,44 |
40,75 |
39,56 |
37,26 |
35,89 |
33,91 |
|
Потребляемая мощность |
кВт |
10,48 |
9,93 |
9,50 |
9,08 |
8,71 |
8,32 |
|
|
+30 °С |
Холодопроизводительность |
кВт |
41,38 |
38,81 |
37,68 |
35,49 |
34,18 |
32,30 |
|
Потребляемая мощность |
кВт |
11,21 |
10,62 |
10,17 |
9,71 |
9,32 |
8,90 |
|
|
+32 °С |
Холодопроизводительность |
кВт |
39,98 |
37,49 |
36,40 |
34,29 |
33,02 |
31,20 |
|
Потребляемая мощность |
кВт |
11,73 |
11,12 |
10,64 |
10,17 |
9,76 |
9,32 |
|
|
+35 °С |
Холодопроизводительность |
кВт |
38,74 |
36,54 |
35,48 |
33,35 |
32,18 |
30,41 |
|
Потребляемая мощность |
кВт |
12,22 |
11,59 |
11,09 |
10,59 |
10,17 |
9,71 |
|
|
+40 °С |
Холодопроизводительность |
кВт |
36,41 |
34,35 |
33,35 |
31,35 |
30,25 |
28,59 |
|
Потребляемая мощность |
кВт |
13,02 |
12,34 |
11,81 |
11,28 |
10,83 |
10,34 |
|
|
+43 °С |
Холодопроизводительность |
кВт |
34,59 |
32,63 |
31,68 |
29,78 |
28,74 |
27,16 |
|
Потребляемая мощность |
кВт |
13,67 |
12,96 |
12,40 |
11,84 |
11,37 |
10,86 |
|
|
+45 °С |
Холодопроизводительность |
кВт |
32,69 |
30,84 |
29,94 |
28,14 |
27,16 |
25,67 |
|
Потребляемая мощность |
кВт |
14,15 |
13,41 |
12,83 |
12,26 |
11,76 |
11,24 |
|
|
RCC-45-410 |
||||||||
|
+25 °С |
Холодопроизводительность |
кВт |
56,11 |
52,92 |
51,09 |
48,12 |
46,34 |
43,79 |
|
Потребляемая мощность |
кВт |
13,36 |
12,49 |
11,95 |
11,41 |
10,96 |
10,46 |
|
|
+30 °С |
Холодопроизводительность |
кВт |
53,43 |
50,12 |
48,66 |
45,83 |
44,14 |
41,71 |
|
Потребляемая мощность |
кВт |
14,53 |
13,58 |
12,99 |
12,41 |
11,91 |
11,37 |
|
|
+32 °С |
Холодопроизводительность |
кВт |
51,63 |
48,42 |
47,01 |
44,28 |
42,64 |
40,30 |
|
Потребляемая мощность |
кВт |
15,21 |
14,21 |
13,60 |
12,99 |
12,47 |
11,91 |
|
|
+35 °С |
Холодопроизводительность |
кВт |
50,03 |
47,19 |
45,82 |
43,07 |
41,56 |
39,28 |
|
Потребляемая мощность |
кВт |
16,01 |
14,96 |
14,32 |
13,67 |
13,13 |
12,54 |
|
|
+40 °С |
Холодопроизводительность |
кВт |
47,02 |
44,36 |
43,07 |
40,49 |
39,07 |
36,92 |
|
Потребляемая мощность |
кВт |
17,42 |
16,28 |
15,58 |
14,88 |
14,28 |
13,64 |
|
|
+43 °С |
Холодопроизводительность |
кВт |
44,67 |
42,14 |
40,92 |
38,46 |
37,12 |
35,07 |
|
Потребляемая мощность |
кВт |
18,46 |
17,26 |
16,51 |
15,77 |
15,14 |
14,46 |
|
|
+45 °С |
Холодопроизводительность |
кВт |
42,22 |
39,83 |
38,67 |
36,35 |
35,07 |
33,15 |
|
Потребляемая мощность |
кВт |
19,30 |
18,03 |
17,26 |
16,48 |
15,82 |
15,11 |
|
|
RCC-53-410 |
||||||||
|
+25 °С |
Холодопроизводительность |
кВт |
65,73 |
61.65 |
59.85 |
56.37 |
54.29 |
51.31 |
|
Потребляемая мощность |
кВт |
15.49 |
14.48 |
13.85 |
13.23 |
12.70 |
12.13 |
|
|
+30 °С |
Холодопроизводительность |
кВт |
62.60 |
58.71 |
57.00 |
53.69 |
51.71 |
48.86 |
|
Потребляемая мощность |
кВт |
16.84 |
15.74 |
15.06 |
14.38 |
13.81 |
13.19 |
|
|
+32 °С |
Холодопроизводительность |
кВт |
60.48 |
56.73 |
55.08 |
51.87 |
49.96 |
47.21 |
|
Потребляемая мощность |
кВт |
17.82 |
16.65 |
15.94 |
15.22 |
14.61 |
13.95 |
|
|
+35 °С |
Холодопроизводительность |
кВт |
58.61 |
55.29 |
53.68 |
50.46 |
48.69 |
46.02 |
|
Потребляемая мощность |
кВт |
18.76 |
17.53 |
16.78 |
16.02 |
15.38 |
14.69 |
|
|
+40 °С |
Холодопроизводительность |
кВт |
55.09 |
51.97 |
50.46 |
47.43 |
45.77 |
43.25 |
|
Потребляемая мощность |
кВт |
20.41 |
19.07 |
18.25 |
17.43 |
16.73 |
15.98 |
|
|
+43 °С |
Холодопроизводительность |
кВт |
52.34 |
49.37 |
47.94 |
45.06 |
43.48 |
41.09 |
|
Потребляемая мощность |
кВт |
21.63 |
20.22 |
19.35 |
18.48 |
17.74 |
16.94 |
|
|
+45 °С |
Холодопроизводительность |
кВт |
49.46 |
46.66 |
45.30 |
42.58 |
41.09 |
38.83 |
|
Потребляемая мощность |
кВт |
22.61 |
21.13 |
20.22 |
19.31 |
18.53 |
17.70 |
|
|
RCC-61-410 |
||||||||
|
+25 °С |
Холодопроизводительность |
кВт |
75,5 |
70.81 |
68.75 |
64.75 |
62.36 |
58.93 |
|
Потребляемая мощность |
кВт |
17.79 |
16.63 |
15.91 |
15.20 |
14.59 |
13.93 |
|
|
+30 °С |
Холодопроизводительность |
кВт |
71.91 |
67.44 |
65.48 |
61.67 |
59.39 |
56.13 |
|
Потребляемая мощность |
кВт |
19.34 |
18.08 |
17.30 |
16.52 |
15.86 |
15.15 |
|
|
+32 °С |
Холодопроизводительность |
кВт |
69.47 |
65.16 |
63.26 |
59.58 |
57.39 |
54.23 |
|
Потребляемая мощность |
кВт |
20.47 |
19.13 |
18.31 |
17.48 |
16.78 |
16.03 |
|
|
+35 °С |
Холодопроизводительность |
кВт |
67.32 |
63.51 |
61.66 |
57.96 |
55.93 |
52.86 |
|
Потребляемая мощность |
кВт |
21.55 |
20.14 |
19.27 |
18.40 |
17.67 |
16.87 |
|
|
+40 °С |
Холодопроизводительность |
кВт |
63.28 |
59.70 |
57.96 |
54.48 |
52.58 |
49.68 |
|
Потребляемая мощность |
кВт |
23.44 |
21.91 |
20.96 |
20.02 |
19.22 |
18.36 |
|
|
+43 °С |
Холодопроизводительность |
кВт |
60.12 |
56.71 |
55.06 |
51.76 |
49.95 |
47.20 |
|
Потребляемая мощность |
кВт |
24.85 |
23.22 |
22.22 |
21.22 |
20.37 |
19.46 |
|
|
+45 °С |
Холодопроизводительность |
кВт |
56.81 |
53.59 |
52.03 |
48.91 |
47.20 |
44.60 |
|
Потребляемая мощность |
кВт |
25.97 |
24.27 |
23.22 |
22.18 |
21.29 |
20.33 |
|
|
RCC-70-410 |
||||||||
|
+25 °С |
Холодопроизводительность |
кВт |
86,68 |
81.30 |
78.93 |
74.34 |
71.60 |
67.66 |
|
Потребляемая мощность |
кВт |
20.43 |
19.09 |
18.27 |
17.45 |
16.75 |
16.00 |
|
|
+30 °С |
Холодопроизводительность |
кВт |
82.55 |
77.43 |
75.17 |
70.80 |
68.19 |
64.44 |
|
Потребляемая мощность |
кВт |
22.21 |
20.75 |
19.86 |
18.97 |
18.21 |
17.39 |
|
|
+32 °С |
Холодопроизводительность |
кВт |
79.76 |
74.81 |
72.63 |
68.41 |
65.88 |
62.26 |
|
Потребляемая мощность |
кВт |
23.50 |
21.96 |
21.02 |
20.07 |
19.27 |
18.40 |
|
|
+35 °С |
Холодопроизводительность |
кВт |
77.29 |
72.91 |
70.79 |
66.54 |
64.21 |
60.68 |
|
Потребляемая мощность |
кВт |
24.74 |
23.12 |
22.12 |
21.13 |
20.28 |
19.37 |
|
|
+40 °С |
Холодопроизводительность |
кВт |
72.65 |
68.54 |
66.54 |
62.55 |
60.36 |
57.04 |
|
Потребляемая мощность |
кВт |
26.91 |
25.15 |
24.07 |
22.99 |
22.07 |
21.07 |
|
|
+43 °С |
Холодопроизводительность |
кВт |
69.02 |
65.11 |
63.22 |
59.42 |
57.34 |
54.19 |
|
Потребляемая мощность |
кВт |
28.53 |
26.66 |
25.51 |
24.36 |
23.39 |
22.34 |
|
|
+45 °С |
Холодопроизводительность |
кВт |
65.22 |
61.53 |
59.74 |
56.15 |
54.19 |
51.21 |
|
Потребляемая мощность |
кВт |
29.81 |
27.86 |
26.66 |
25.46 |
24.44 |
23.34 |
|
|
RCC-105-410 |
||||||||
|
+25 °С |
Холодопроизводительность |
кВт |
129.73 |
121.68 |
118.13 |
111.26 |
107.16 |
101.27 |
|
Потребляемая мощность |
кВт |
30.58 |
28.58 |
27.35 |
26.12 |
25.07 |
23.94 |
|
|
+30 °С |
Холодопроизводительность |
кВт |
123.56 |
115.88 |
112.51 |
105.96 |
102.06 |
96.44 |
|
Потребляемая мощность |
кВт |
33.24 |
31.06 |
29.72 |
28.39 |
27.25 |
26.02 |
|
|
+32 °С |
Холодопроизводительность |
кВт |
119.38 |
111.97 |
108.70 |
102.38 |
98.61 |
93.18 |
|
Потребляемая мощность |
кВт |
35.17 |
32.87 |
31.45 |
30.04 |
28.84 |
27.54 |
|
|
+35 °С |
Холодопроизводительность |
кВт |
115.68 |
109.13 |
105.95 |
99.59 |
96.11 |
90.82 |
|
Потребляемая мощность |
кВт |
37.02 |
34.60 |
33.11 |
31.62 |
30.35 |
28.99 |
|
|
+40 °С |
Холодопроизводительность |
кВт |
108.74 |
102.58 |
99.59 |
93.62 |
90.34 |
85.37 |
|
Потребляемая мощность |
кВт |
40.28 |
37.64 |
36.02 |
34.40 |
33.03 |
31.54 |
|
|
+43 °С |
Холодопроизводительность |
кВт |
103.30 |
97.45 |
94.61 |
88.94 |
85.82 |
81.10 |
|
Потребляемая мощность |
кВт |
42.70 |
39.90 |
38.18 |
36.47 |
35.01 |
33.43 |
|
|
+45 °С |
Холодопроизводительность |
кВт |
97.62 |
92.09 |
89.41 |
84.05 |
81.10 |
76.64 |
|
Потребляемая мощность |
кВт |
44.62 |
41.70 |
39.90 |
38.11 |
36.58 |
34.94 |
|
|
RCC-150-410 |
||||||||
|
+25 °С |
Холодопроизводительность |
кВт |
185.32 |
172.7 |
168.5 |
158.87 |
153.02 |
143.8 |
|
Потребляемая мощность |
кВт |
43.5 |
40.58 |
38.8 |
37.29 |
35.79 |
34.16 |
|
|
+30 °С |
Холодопроизводительность |
кВт |
175,42 |
164,54 |
159,76 |
150,46 |
144,06 |
136,32 |
|
Потребляемая мощность |
кВт |
47.2 |
44.1 |
42.2 |
41.78 |
38.69 |
36.94 |
|
|
+32 °С |
Холодопроизводительность |
кВт |
169.51 |
158.99 |
154.35 |
145.37 |
140.02 |
132.31 |
|
Потребляемая мощность |
кВт |
49.94 |
46.67 |
44.65 |
42.65 |
40.95 |
39.10 |
|
|
+35 °С |
Холодопроизводительность |
кВт |
164,2 |
154,96 |
150,44 |
141,41 |
136,47 |
128,96 |
|
Потребляемая мощность |
кВт |
52,56 |
49,13 |
47,01 |
44,90 |
43,097 |
41,06 |
|
|
+40 °С |
Холодопроизводительность |
кВт |
154.41 |
145.66 |
141.41 |
132.94 |
128.28 |
121.22 |
|
Потребляемая мощность |
кВт |
57.19 |
53.44 |
51.14 |
48.84 |
46.9 |
44.78 |
|
|
+43 °С |
Холодопроизводительность |
кВт |
146.68 |
138.37 |
134.34 |
126.23 |
121.8 |
115.16 |
|
Потребляемая мощность |
кВт |
60.63 |
56.65 |
54.21 |
51.78 |
49.711 |
47.47 |
|
|
+45 °С |
Холодопроизводительность |
кВт |
138.62 |
130.76 |
126.93 |
119.35 |
115.16 |
108.15 |
|
Потребляемая мощность |
кВт |
63.36 |
59.21 |
56.658 |
54.11 |
51.94 |
49.61 |
|
|
RCC-300-410 |
||||||||
|
+25 °С |
Холодопроизводительность |
кВт |
376.64 |
345.4 |
337.5 |
317.74 |
306.04 |
287.6 |
|
Потребляемая мощность |
кВт |
87.5 |
81.16 |
77.6 |
74.58 |
71.58 |
68.32 |
|
|
+30 °С |
Холодопроизводительность |
кВт |
350.8 |
329.1 |
319.52 |
300.92 |
288.12 |
272.64 |
|
Потребляемая мощность |
кВт |
94.4 |
88.2 |
84.4 |
83.56 |
77.38 |
73.88 |
|
|
+32 °С |
Холодопроизводительность |
кВт |
339.02 |
317.8 |
308.7 |
290.74 |
280.04 |
264.62 |
|
Потребляемая мощность |
кВт |
99.8 |
93.4 |
89.3 |
85.4 |
82.7 |
79.2 |
|
|
+35 °С |
Холодопроизводительность |
кВт |
328.2 |
309.8 |
300.88 |
284.8 |
272.9 |
257.92 |
|
Потребляемая мощность |
кВт |
103.2 |
98.26 |
94.02 |
89.9 |
86.18 |
82.12 |
|
|
+40 °С |
Холодопроизводительность |
кВт |
308.82 |
291.32 |
282.84 |
265.88 |
256.5 |
242.44 |
|
Потребляемая мощность |
кВт |
114.3 |
106.88 |
102.28 |
97.68 |
93.8 |
89.56 |
|
|
+43 °С |
Холодопроизводительность |
кВт |
293.36 |
276.74 |
268.64 |
253.28 |
243.6 |
230.32 |
|
Потребляемая мощность |
кВт |
119.8 |
113.2 |
108.32 |
103.56 |
99.42 |
94.94 |
|
|
+45 °С |
Холодопроизводительность |
кВт |
277.24 |
261.52 |
126.93 |
238.7 |
230.32 |
215.82 |
|
Потребляемая мощность |
кВт |
126.72 |
118.42 |
113.32 |
108.22 |
103.88 |
99.22 |
|
МАРКИРОВКА:
Блок компрессорно-конденсаторный RCC-5.0-410
где: RC –
компрессорно-конденсаторный блок;
RCC - только охлаждение, RCH - охлаждение и нагрев;
5,0 - холодопроизводительность, кВт;
410 – тип хладагента
(R410А).
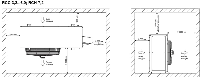
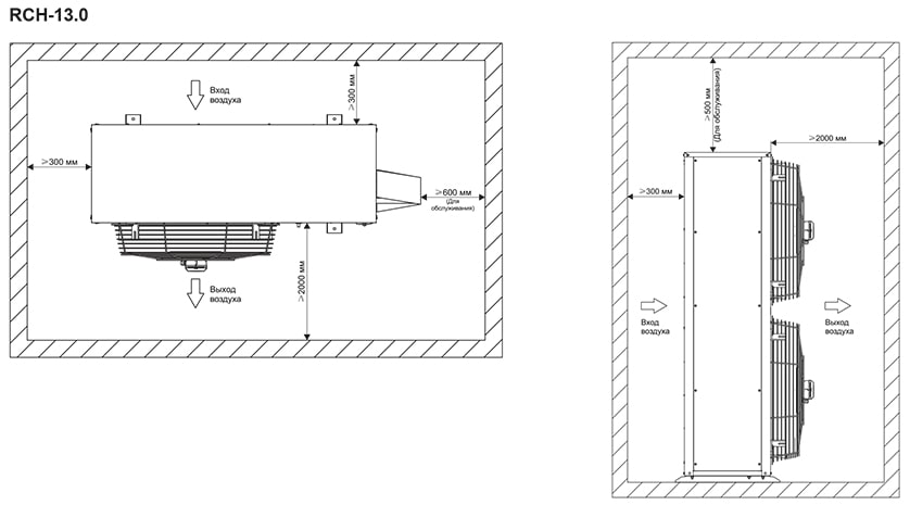
Рекомендации по проектированию и монтажу ККБ серий RCC/RCH
1. Прокладка трубопроводов
При прокладке фреонопроводов для обеспечения циркуляции
масла по фреоновому контуру системы необходимо учитывать схему установки: ККБ
выше секции испарителя или ККБ ниже секции испарителя.
Горизонтальные трассы фреонопроводов прокладываются с
уклоном не менее 1,2% (12 мм/м) вверх от ККБ в сторону испарителя.
При проектировании или монтаже фреонопроводов необходимо
минимизировать длину и перепады высот, а так же избегать излишних поворотов. Во
избежание резких поворотов заменяйте отводы 90° с большим сопротивлением на
отводы 45° с меньшим сопротивлением.
В случае установки ККБ выше секции испарителя необходимо
предусмотреть устройство маслоподъемных петель как указано на схеме соединения
ККБ выше испарителя.
Высота расположения между ККБ и испарителем не более 3 м.
Если высота больше 3 м - необходимо устройство масловозвратной петли через
каждые 3,5 м, как указано на схеме ниже.
В случае общей протяженности трубопроводов
(горизонтальных и вертикальных участков) более 15 м - необходимо производить
перерасчет диаметров трубопроводов и холодопроизводительности
компрессорно-конденсаторных блоков, а так же произвести перерасчет дозы
заправки хладагентом согласно паспорту на изделие.

2. Монтаж ККБ
При монтаже компрессорно-конденсаторного блока необходимо
обеспечить:
- установку в сухом и хорошо проветриваемом месте
- установку на ровной горизонтальной поверхности
- отсутствие препятствий со стороны осевого вентилятора и
фреонового конденсатора
- доступ для подключения фреонопроводов, установки и
последующей замены фильтра-осушителя
- доступ для подключения силового кабеля
- легкий доступ для обслуживания блока управления и очистки теплообменника от загрязнения
- отсутствие других источников тепла
- наличие защитного (не прозрачного) экрана от прямых
солнечных лучей.





Соединительный комплект для ККБ серий RCC/RCH
Компрессорно-конденсаторные блоки присоединяются к секции
фреонового охлаждения медными трубопроводами в теплоизоляционных трубках двух
типов: жидкостной (линией нагнетания) и газовой (линией всасывания).
В системах с компрессорно-конденсаторными блоками на линии
нагнетания устанавливаются элементы «Соединительного комплекта для ККБ».
Непосредственно перед секцией фреонового охлаждения (испарителем) рекомендуется
установка соленоидного клапана и ТРВ (терморегулирующего вентиля) или ЭРВ
(электронно регулирующего вентиля)
Регулирующий вентиль (ТРВ или ЭРВ) – это дросселирующий
клапан, который регулирует подачу жидкого хладагента в испаритель.
Электромагнитный клапан предназначен для управления потоками
жидких и газообразных сред в автоматическом режиме. Представляет собой
электромеханическое устройство. Приводом служит подвижный сердечник
электромагнита (соленоида).
Фильтр-осушитель защищает холодильные системы и системы
кондиционирования от воздуха, влаги, кислот и твердых частиц, предотвращая
вредные химические реакции и появление абразивных частиц.
Смотровое стекло предназначено для оценки состояния
хладагента после фильтра осушителя.
Фильтр-осушитель и смотровое стекло рекомендуется
устанавливать на жидкостной линии непосредственно после
компрессорно-конденсаторного блока.



Состав соединительных комплектов для ККБ серий RCC/RCH
|
Модель ККБ |
Модель комплекта |
Мощность, кВт |
Фильтр-осушитель |
Смотровое окно |
Электромагнитный клапан |
ТРВ |
Вставка расширительная к ТРВ |
|
RCC-3.2-410 |
C-3,5-410 |
3,37 |
+ |
+ |
+/- |
+ |
+ |
|
RCC-5.0-410 |
C-5,3-410 |
5,31 |
+ |
+ |
+/- |
+ |
+ |
|
RCC-6.0-410 |
C-6,5-410 |
6,51 |
+ |
+ |
+/- |
+ |
+ |
|
RCH-7.2-410 |
C-7,5-410 |
7,45 |
+ |
+ |
+/- |
+ |
+ |
|
RCH-13.0-410 |
C-15-410 |
14,72 |
+ |
+ |
+ |
+ |
+ |
|
RCC-22-410 |
C-25-410 |
22,26 |
+ |
+ |
+ |
+ |
- |
|
RCC-28-410 |
C-30-410 |
29,16 |
+ |
+ |
+ |
+ |
- |
|
RCC-35-410 |
C-40-410-UP |
37,73 |
+ |
+ |
+ |
+ |
- |
|
RCC-45-410 |
C-53-410-UP |
48,09 |
+ |
+ |
+ |
+ |
- |
|
RCC-53-410 |
C-30-410 (2 шт.) |
53,68 |
+ |
+ |
+ |
+ |
- |
|
RCC-61-410 |
C-35-410 (2 шт.) |
61,66 |
+ |
+ |
+ |
+ |
- |
|
RCC-70-410 |
C-40-410 (2 шт.) |
70,79 |
+ |
+ |
+ |
+ |
- |
|
RCH-105-410 |
C-60-410 (2 шт.) |
105,95 |
+ |
+ |
+ |
+ |
- |
|
RCH-150-410 |
C-80-410 (2 шт.) |
150,44 |
+ |
+ |
+ |
+ |
- |
|
RCC-300-410 |
C-80-410 (4 шт.) |
300,88 |
+ |
+ |
+ |
+ |
- |
Не представленные в наличии модели доступны к поставке под заказ
Оповестить о поступлении
Всю необходимую информацию также можно получить по телефону «горячей линии»
+ 7 800 200 93 96или по телефону
+7 800 505 08 67 получить консультацию